Surface très lumineuse - 305m2 bureaux
CHF 6'354.-
- 305m²Surface
Réf. L50310
Surface très lumineuse - 305m2 bureaux
Bureaux lumineux de 305 m² à louer – Meyrin Village, à proximité immédiate du CERN
Situés au cœur du village convivial de Meyrin, à deux pas du CERN, ces bureaux bénéficient d’un emplacement stratégique, parfaitement desservi par les transports publics. Le tram (ligne18) ainsi que les bus 57 et 68 se trouvent à quelques mètres seulement. Le parking de Meyrin Village est accessible à 50 mètres.
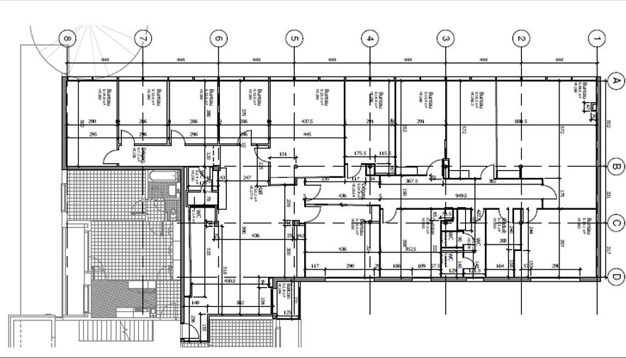
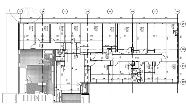
Implantés au 1er étage, ces bureaux d’environ 305 m² offrent une excellente luminosité et de beaux volumes, avec une grande flexibilité d’aménagement. En l’état, la surface se compose de :
Une entrée sur un open space
9 bureaux individuels
2 grands bureaux
2 blocs sanitaires
1 espace cuisine
1 espace archives et informatique
Le câblage informatique est présent en périphérie.
Des travaux de rafraîchissement sont prévus à la charge du bailleur
L’immeuble bénéficie d’un environnement très dynamique avec de nombreux commerces et restaurants à proximité immédiate, dont une Coop au rez-de-chaussée.
À noter : pas d’accès pour les personnes à mobilité réduite.
N’hésitez pas à nous contacter pour organiser une visite ou obtenir de plus amples informations.
Situés au cœur du village convivial de Meyrin, à deux pas du CERN, ces bureaux bénéficient d’un emplacement stratégique, parfaitement desservi par les transports publics. Le tram (ligne18) ainsi que les bus 57 et 68 se trouvent à quelques mètres seulement. Le parking de Meyrin Village est accessible à 50 mètres.
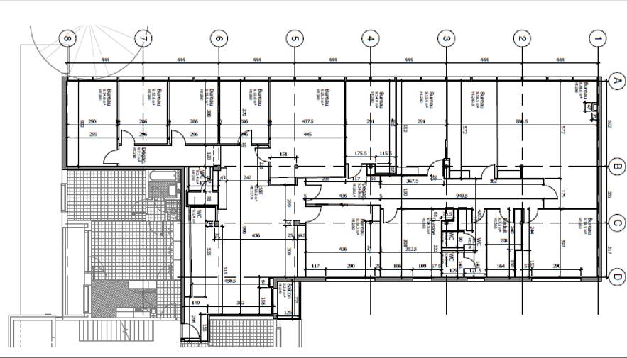
Implantés au 1er étage, ces bureaux d’environ 305 m² offrent une excellente luminosité et de beaux volumes, avec une grande flexibilité d’aménagement. En l’état, la surface se compose de :
Une entrée sur un open space
9 bureaux individuels
2 grands bureaux
2 blocs sanitaires
1 espace cuisine
1 espace archives et informatique
Le câblage informatique est présent en périphérie.
Des travaux de rafraîchissement sont prévus à la charge du bailleur
L’immeuble bénéficie d’un environnement très dynamique avec de nombreux commerces et restaurants à proximité immédiate, dont une Coop au rez-de-chaussée.
À noter : pas d’accès pour les personnes à mobilité réduite.
N’hésitez pas à nous contacter pour organiser une visite ou obtenir de plus amples informations.
- Télécharger la brochure
- Sauvegarder
- Partager
Transaction
| Type | Bureau |
|---|---|
| Référence | L50310 |
| Charges | CHF 375.- |
| Disponibilité | À convenir |
Surfaces
| Surface habitable | 305 m² |
|---|
Bâtiment
| Nombre d'étages | 1 |
|---|---|
| Étage | 1 |
BARNES Commercial Realty SA
BARNES Commercial Realty SA


















