Bureaux lumineux et semi-aménagés à Meyrin
Bureaux lumineux et semi-aménagés à Meyrin
CHF 13'725.-
Bureaux lumineux et semi-aménagés à Meyrin
CHF 13'725.-
- 748m²Surface
Réf. L68540
Bureaux lumineux et semi-aménagés à Meyrin
Situé au cœur de la zone industrielle et artisanale de Meyrin–Satigny, le bâtiment bénéficie d’un emplacement stratégique, à proximité immédiate de l’autoroute A1, de la gare de Satigny et de l’aéroport international de Genève.
L’immeuble, en bon état général, dispose d’un hall d’accueil récemment rénové. Il est équipé d’un ascenseur et d’un monte-charge desservant tous les étages, ainsi que d’un système de contrôle d’accès par badge, de sprinklers et de caméras de surveillance. Un service de conciergerie est également à disposition.
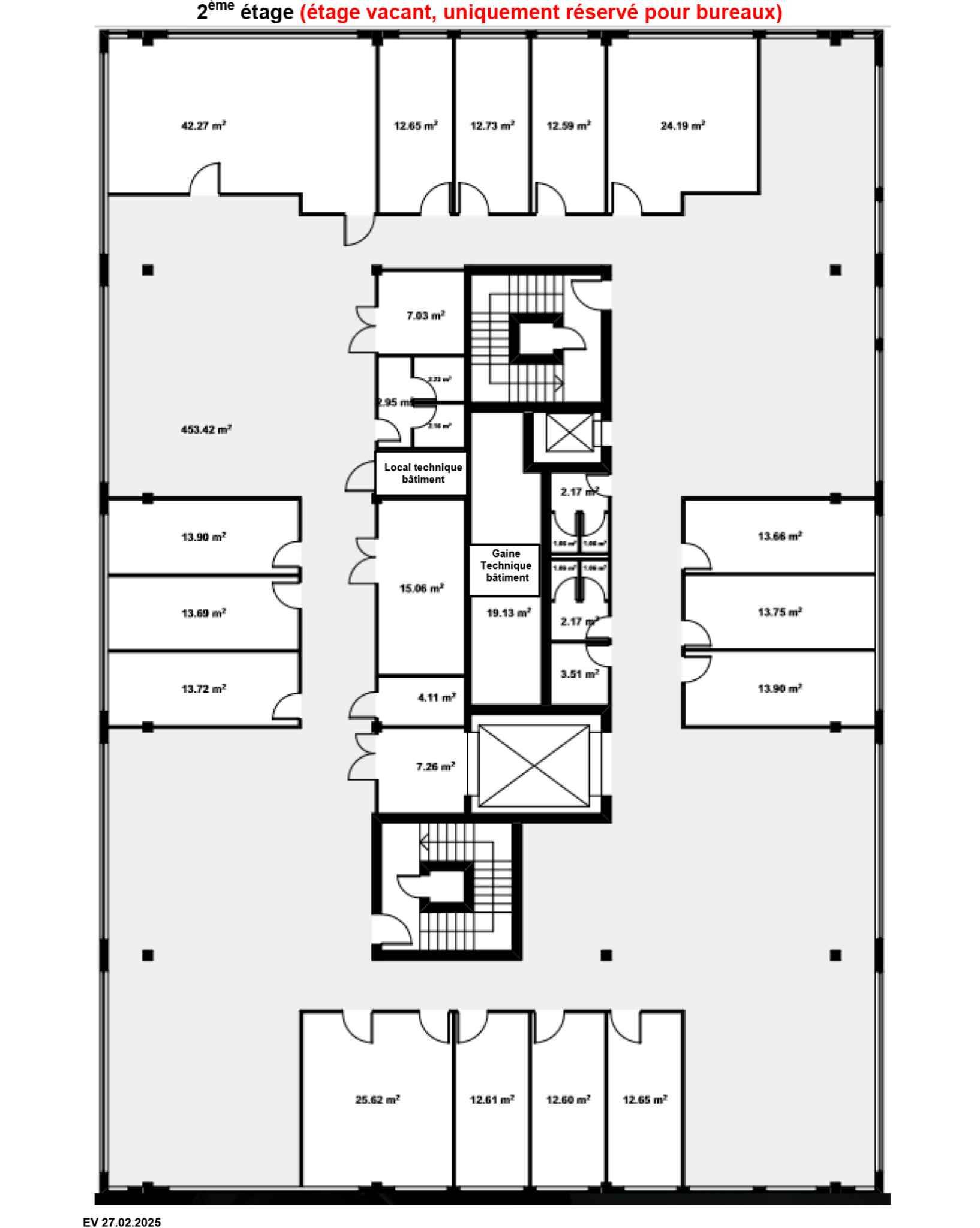
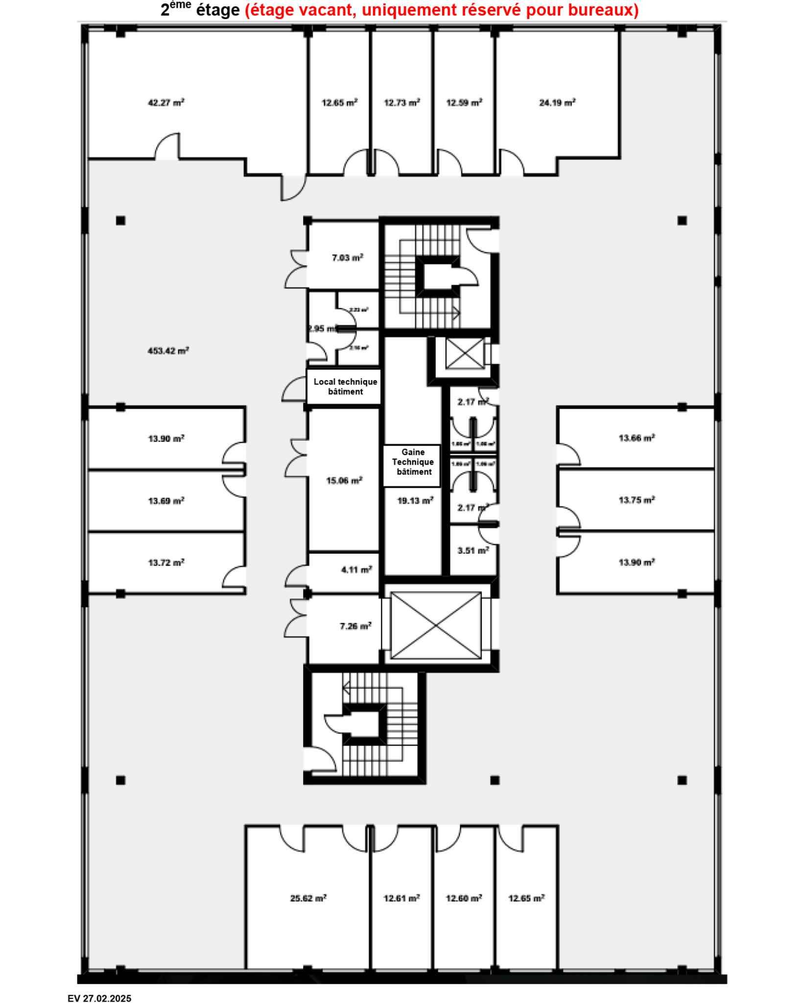
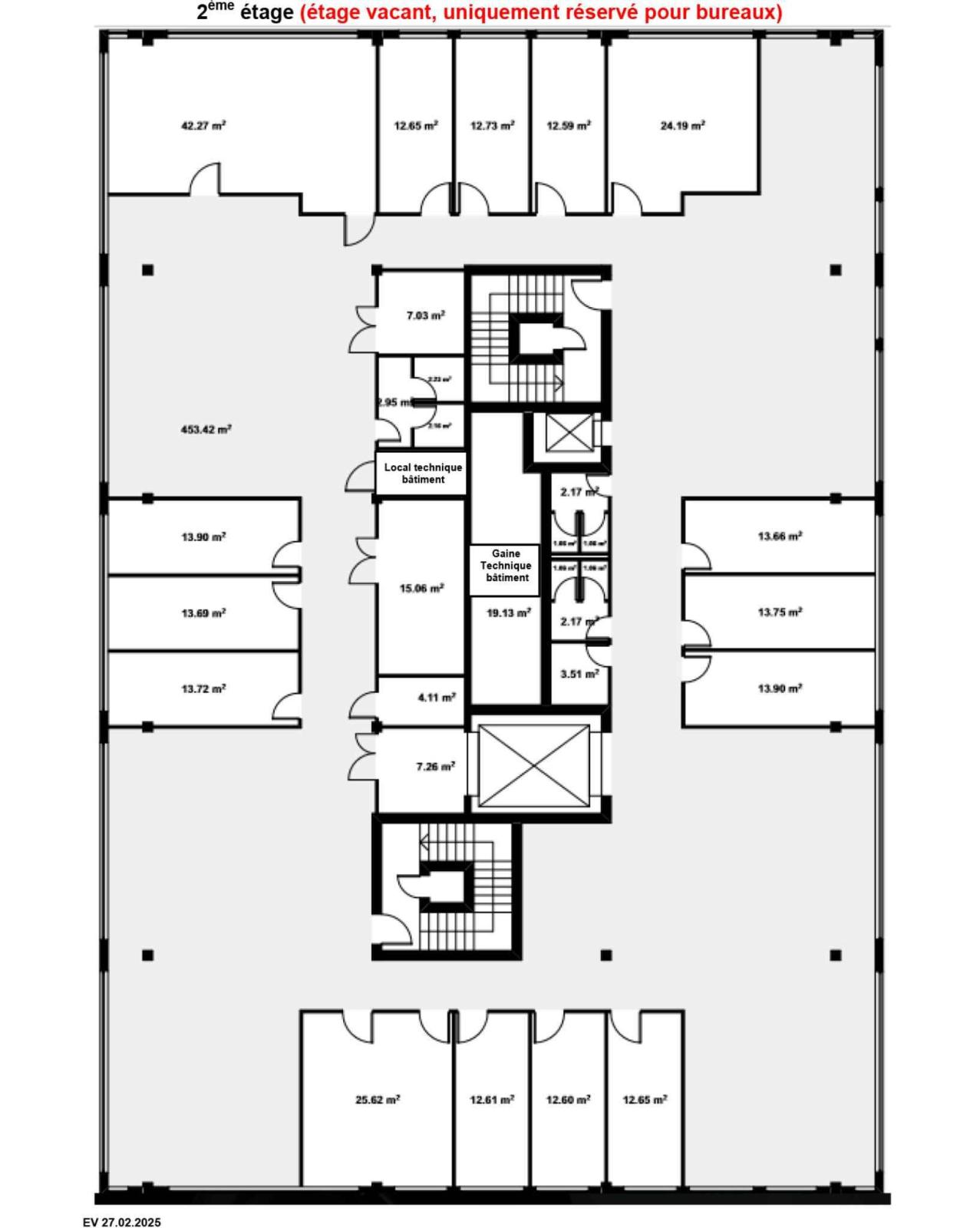
La surface proposée se situe au 2ᵉ étage. Elle fait un total de 748m2 divisible.
Lumineuse et modulable, elle se compose de quatre bureaux fermés, d’une cuisine entièrement aménagée et de deux blocs sanitaires communs. Les installations électriques sont intégrées en périphérie. L’ascenseur et le monte-charge permettent un accès direct aux locaux.
Cette surface est idéalement adaptée à une activité administrative compatible avec la zone industrielle, notamment dans les domaines pharmaceutique, biotechnologique, horloger ou informatique.
Des places de parking en sous-sol sont disponibles à la location au prix de CHF 200.– par place et par mois.
Un parking visiteurs est également à disposition à l’extérieur.
Adresse :
Rue du Pré-Bouvier 7, 1217 Meyrin
L’immeuble, en bon état général, dispose d’un hall d’accueil récemment rénové. Il est équipé d’un ascenseur et d’un monte-charge desservant tous les étages, ainsi que d’un système de contrôle d’accès par badge, de sprinklers et de caméras de surveillance. Un service de conciergerie est également à disposition.
La surface proposée se situe au 2ᵉ étage. Elle fait un total de 748m2 divisible.
Lumineuse et modulable, elle se compose de quatre bureaux fermés, d’une cuisine entièrement aménagée et de deux blocs sanitaires communs. Les installations électriques sont intégrées en périphérie. L’ascenseur et le monte-charge permettent un accès direct aux locaux.
Cette surface est idéalement adaptée à une activité administrative compatible avec la zone industrielle, notamment dans les domaines pharmaceutique, biotechnologique, horloger ou informatique.
Des places de parking en sous-sol sont disponibles à la location au prix de CHF 200.– par place et par mois.
Un parking visiteurs est également à disposition à l’extérieur.
Adresse :
Rue du Pré-Bouvier 7, 1217 Meyrin
- Télécharger la brochure
- Sauvegarder
- Partager
Transaction
| Type | Bureau |
|---|---|
| Référence | L68540 |
| Charges | N.C |
| Disponibilité | De suite |
Surfaces
| Surface habitable | 748 m² |
|---|
Bâtiment
| Nombre d'étages | 1 |
|---|---|
| Étage | 2 |
BARNES Commercial Realty SA
BARNES Commercial Realty SA




















