Bureau Plug & Play de 337 m² – Atrium Park, Meyrin
Bureau Plug & Play de 337 m² – Atrium Park, Meyrin
CHF 9'548.-
Bureau Plug & Play de 337 m² – Atrium Park, Meyrin
CHF 9'548.-
- 337m²Surface
Réf. L52185
Bureau Plug & Play de 337 m² – Atrium Park, Meyrin
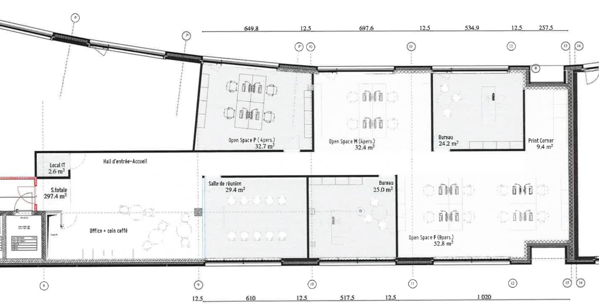
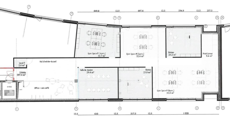
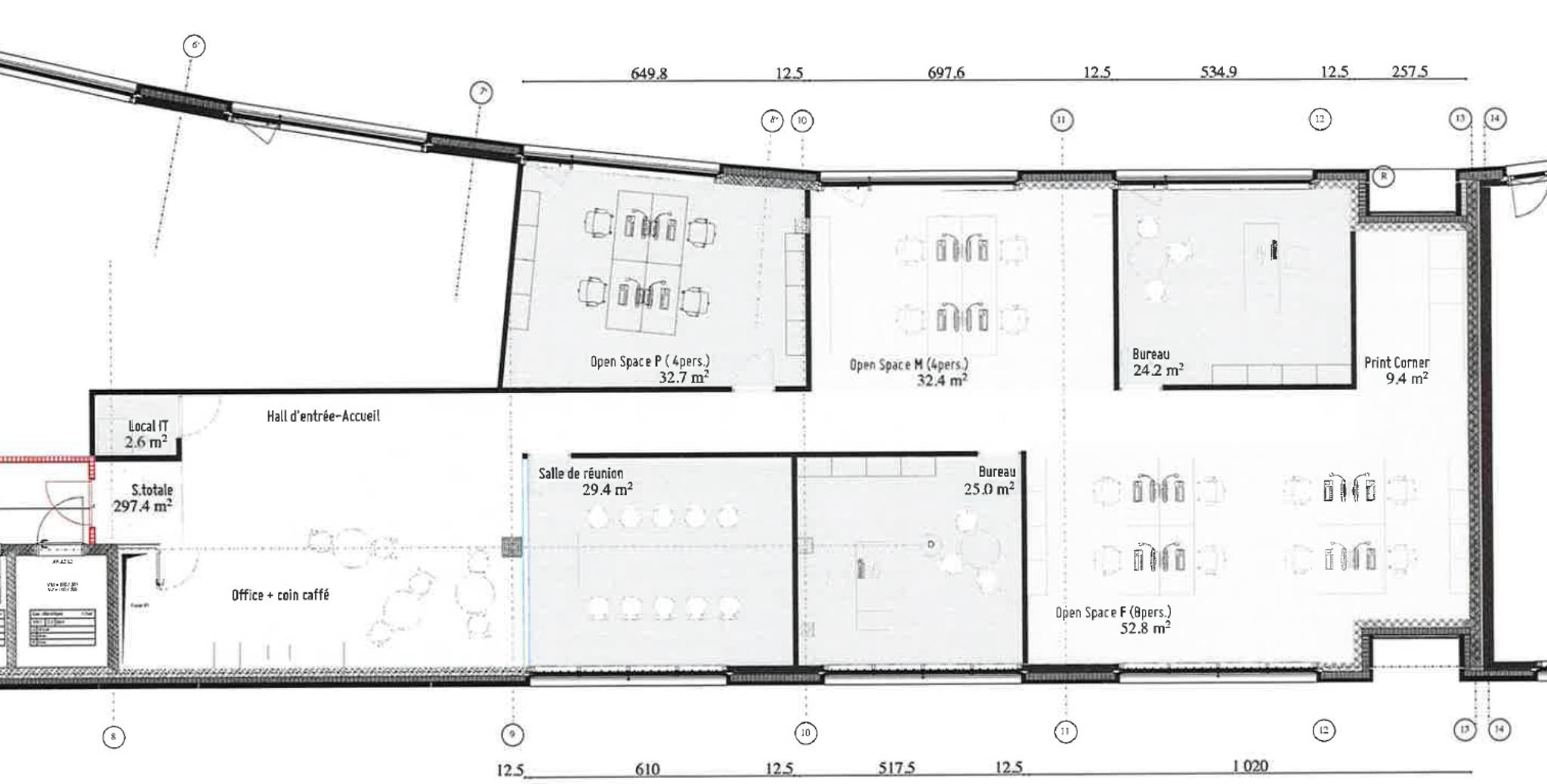
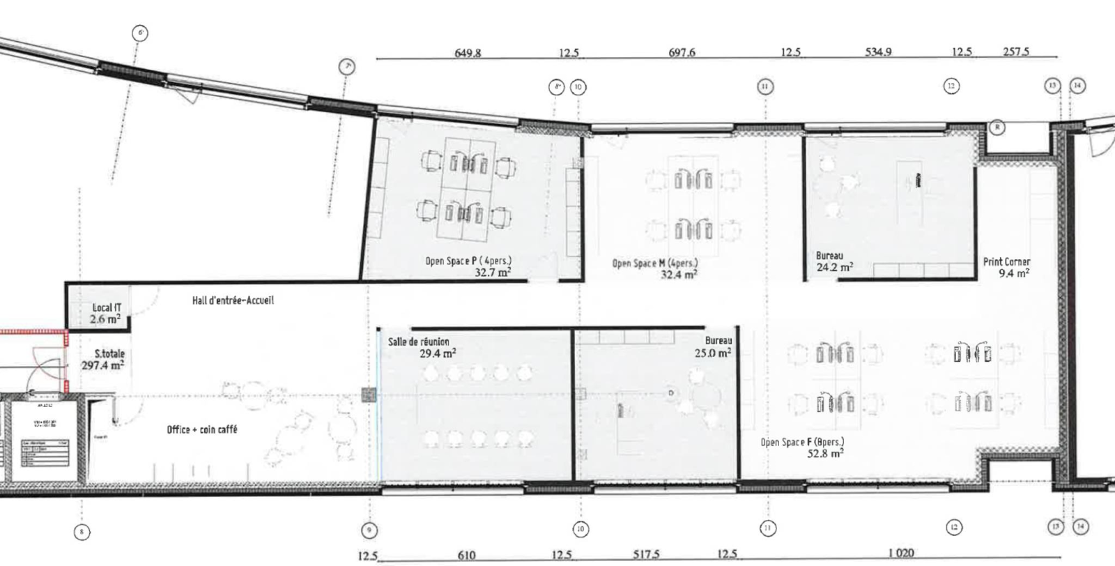
Située au 2ᵉ étage du bâtiment Atrium Park, cette surface de 337 m² offre un environnement de travail moderne et fonctionnel, prêt à l’emploi (Plug & Play).
Idéale pour une entreprise recherchant un espace immédiatement opérationnel, combinant bureaux fermés et open space.
Caractéristiques de la surface :
- Surface aménagée et Plug & Play
- Bureaux séparés & open space pour une flexibilité optimale
- Coin cuisine pour le confort des collaborateurs
- Lumineux et bien agencé
Atouts supplémentaires :
- Adresse stratégique : Rue de la Bergère 3C, 1217 Meyrin, au cœur d’Atrium Park
- 4 à 5 places de parking en sous-sol disponibles en sus
- Excellente accessibilité aux transports et axes routiers
Disponible de suite
Intéressé ? Contactez-nous pour plus d’informations ou pour organiser une visite !
Idéale pour une entreprise recherchant un espace immédiatement opérationnel, combinant bureaux fermés et open space.
Caractéristiques de la surface :
- Surface aménagée et Plug & Play
- Bureaux séparés & open space pour une flexibilité optimale
- Coin cuisine pour le confort des collaborateurs
- Lumineux et bien agencé
Atouts supplémentaires :
- Adresse stratégique : Rue de la Bergère 3C, 1217 Meyrin, au cœur d’Atrium Park
- 4 à 5 places de parking en sous-sol disponibles en sus
- Excellente accessibilité aux transports et axes routiers
Disponible de suite
Intéressé ? Contactez-nous pour plus d’informations ou pour organiser une visite !
- Télécharger la brochure
- Sauvegarder
- Partager
Transaction
| Type | Bureau |
|---|---|
| Référence | L52185 |
| Charges | N.C |
| Disponibilité | À convenir |
Surfaces
| Surface habitable | 337 m² |
|---|
Bâtiment
| Nombre d'étages | 1 |
|---|---|
| Étage | 2 |
BARNES Commercial Realty SA
BARNES Commercial Realty SA






















