Bureaux de 110m2 - proche Gare
CHF 3'300.-
- 110m²Surface
Réf. L67940
Bureaux de 110m2 - proche Gare
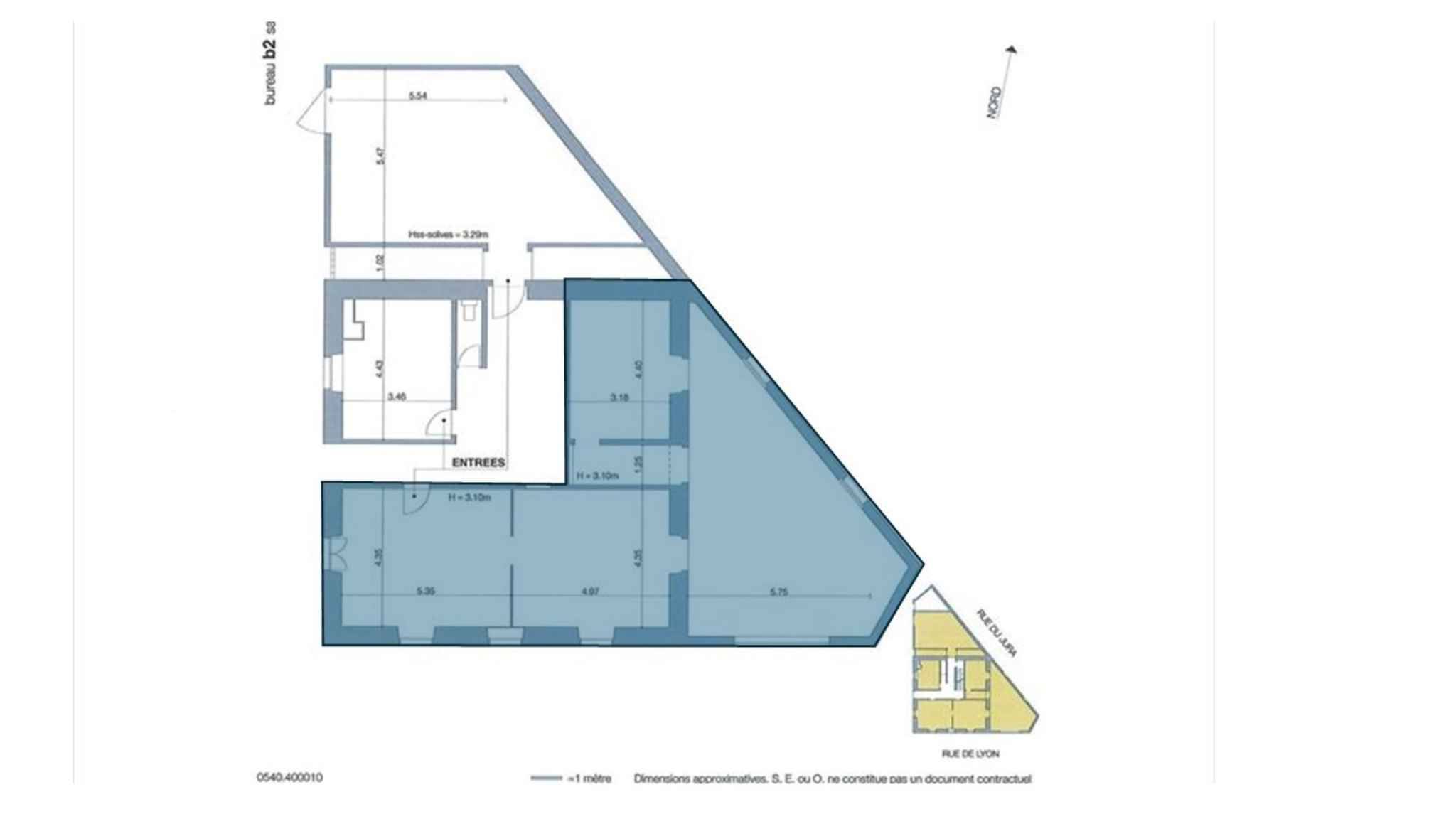
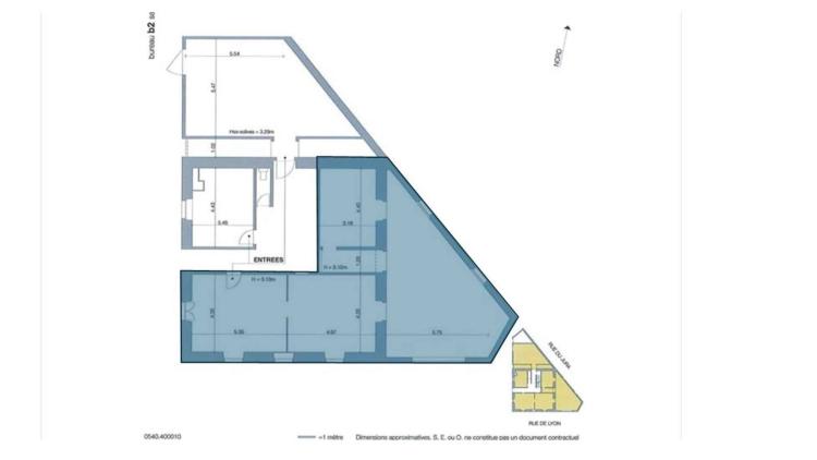
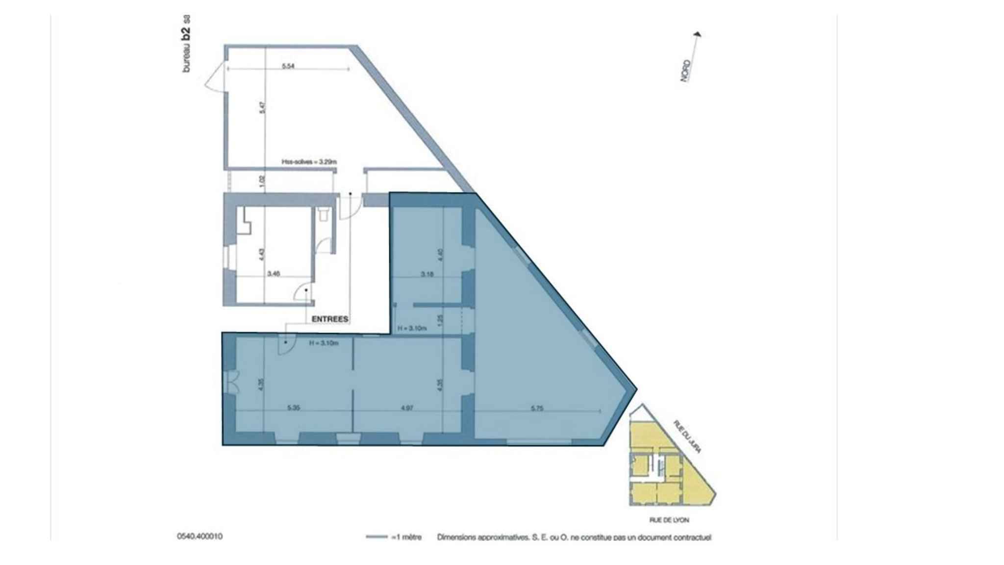
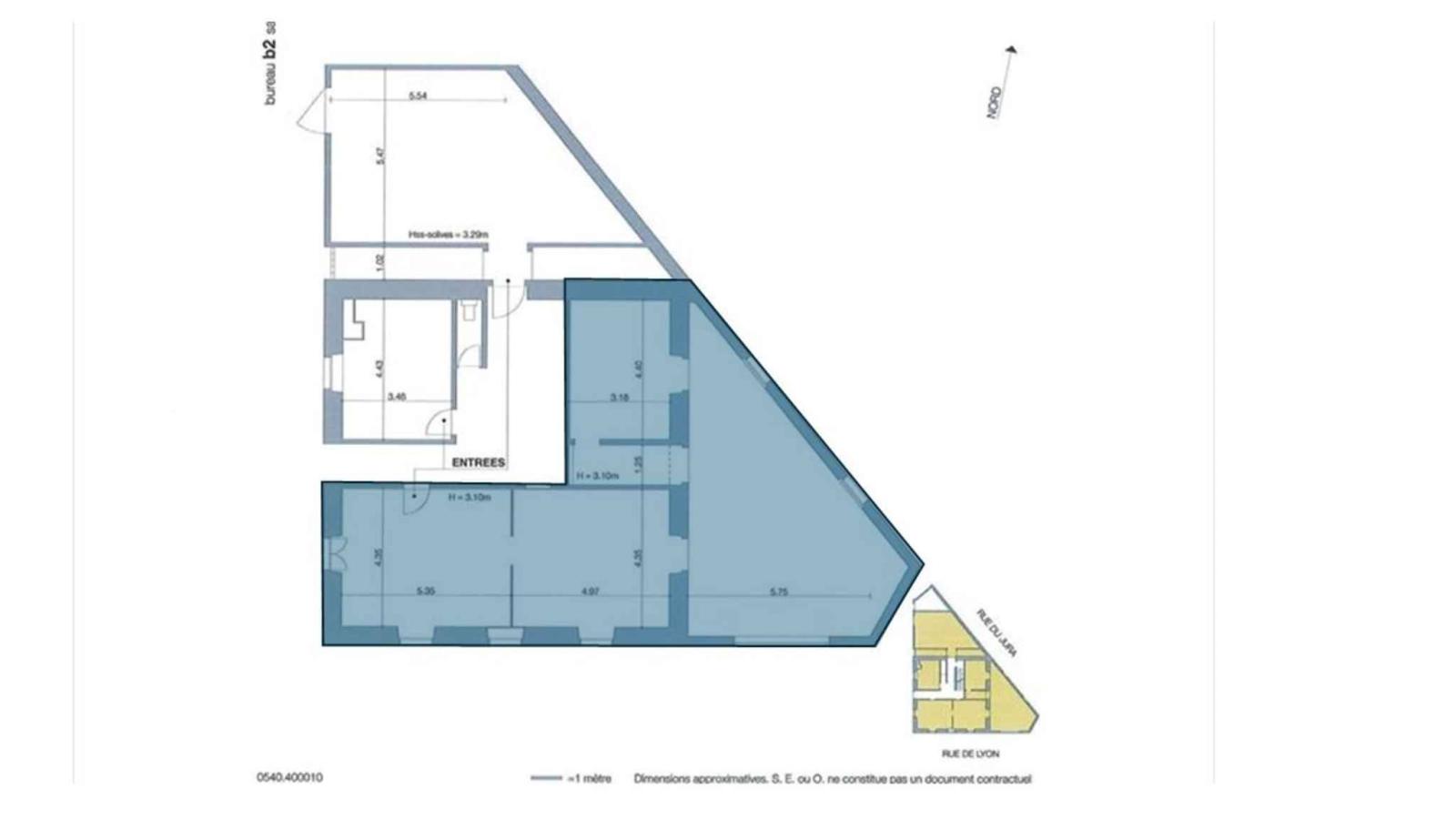
Nous vous proposons un espace de bureaux de 110 m² situé au rez-de-chaussée d’un immeuble d'habitation, idéalement placé au 12, rue de Lyon, à seulement 9 minutes à pied de la Gare Cornavin.
Le quartier est dynamique, proche du centre-ville et bénéficie d’un environnement agréable et commerçant, avec une très bonne accessibilité grâce aux nombreuses lignes TPG situées à seulement 210 m (14, 15, 17, 18, 3, A2).
Composition de l’espace :
3 bureaux
un open-space
1 sanitaire sur le palier.
Cet espace fonctionnel, bien desservi est parfaitement adapté pour des activités multi-médicales telles que kinésithérapie, orthophonie, psychologie, et autres professions paramédicales, mais aussi pour toutes activités administrative.
Le quartier est dynamique, proche du centre-ville et bénéficie d’un environnement agréable et commerçant, avec une très bonne accessibilité grâce aux nombreuses lignes TPG situées à seulement 210 m (14, 15, 17, 18, 3, A2).
Composition de l’espace :
3 bureaux
un open-space
1 sanitaire sur le palier.
Cet espace fonctionnel, bien desservi est parfaitement adapté pour des activités multi-médicales telles que kinésithérapie, orthophonie, psychologie, et autres professions paramédicales, mais aussi pour toutes activités administrative.
- Télécharger la brochure
- Sauvegarder
- Partager
Transaction
| Type | Bureau |
|---|---|
| Référence | L67940 |
| Charges | CHF 415.- |
| Disponibilité | À convenir |
Surfaces
| Surface habitable | 110 m² |
|---|
Bâtiment
| Nombre d'étages | 1 |
|---|
BARNES Commercial Realty SA
BARNES Commercial Realty SA






















