Bureaux d’exception de 414m² au cœur du Quartier de l’Étang
Bureaux d’exception de 414m² au cœur du Quartier de l’Étang
CHF 11'730.-
Bureaux d’exception de 414m² au cœur du Quartier de l’Étang
CHF 11'730.-
- 414m²Surface
Réf. L68478
Bureaux d’exception de 414m² au cœur du Quartier de l’Étang
Situé au cœur du Quartier de l’Étang, pôle économique dynamique et durable, Le Belvédère s’impose comme le bâtiment le plus prestigieux du site. Il accueille notamment le siège de la banque Rothschild, confirmant son positionnement institutionnel et premium.
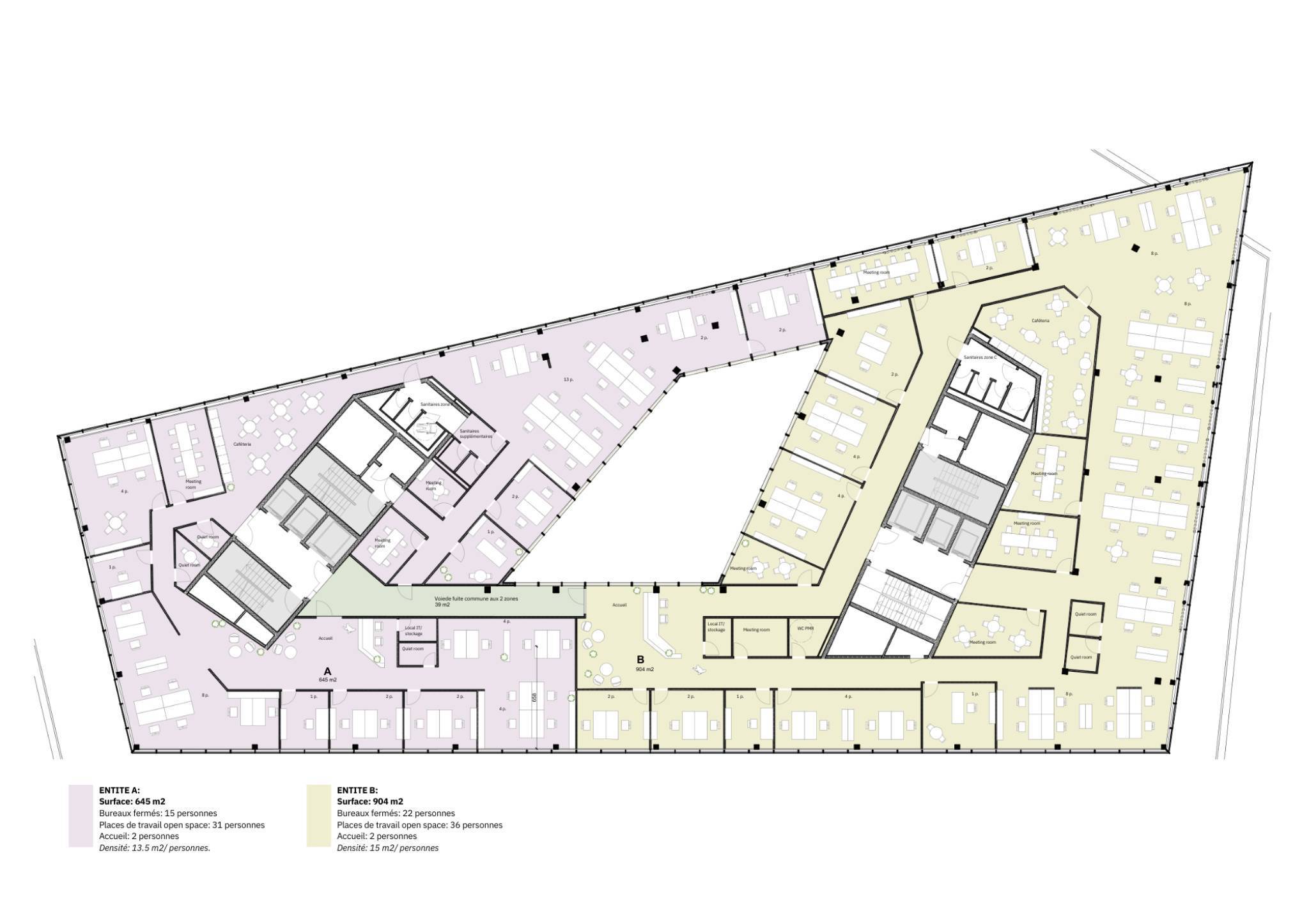
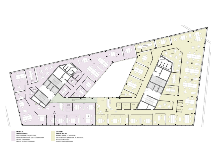
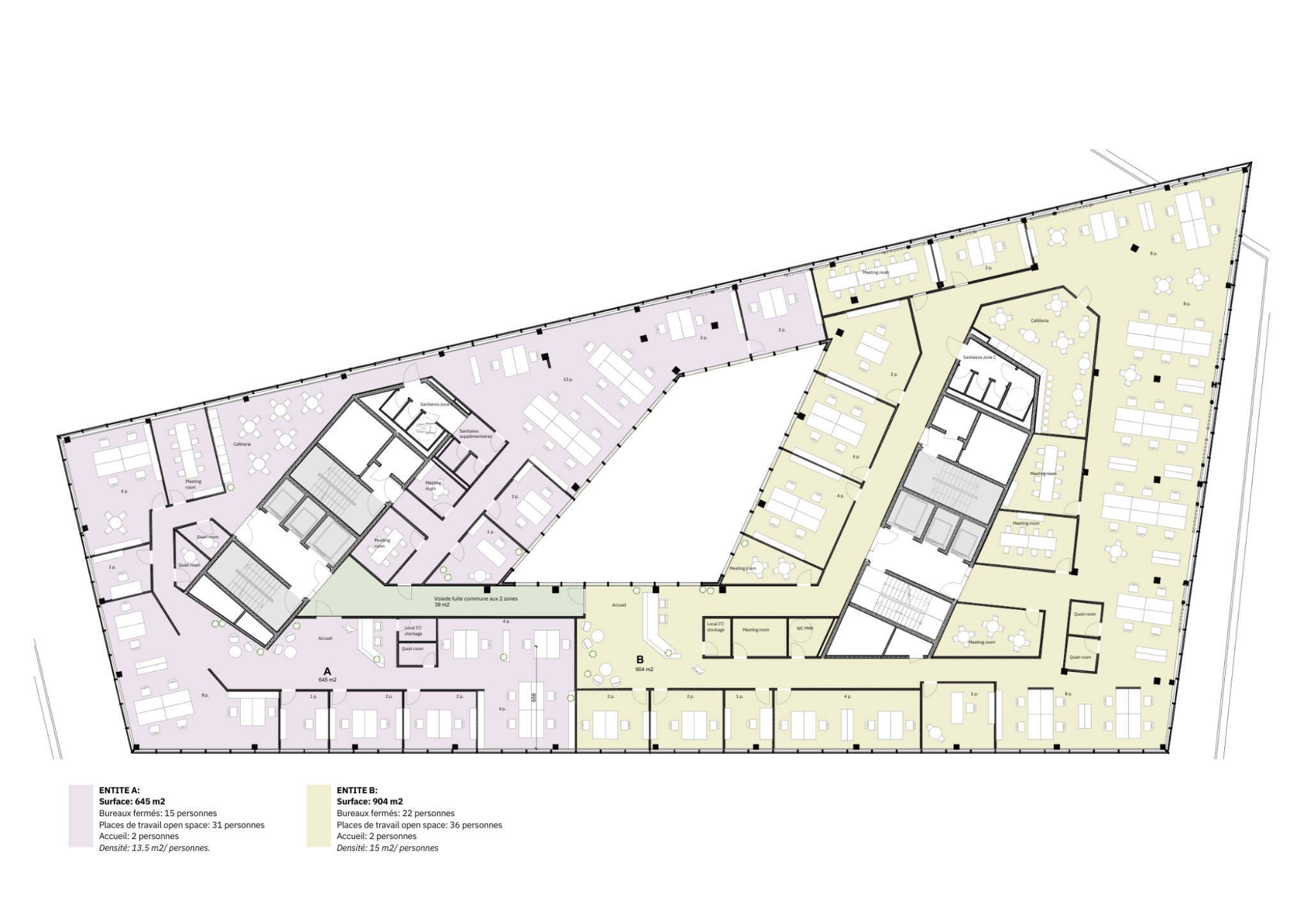
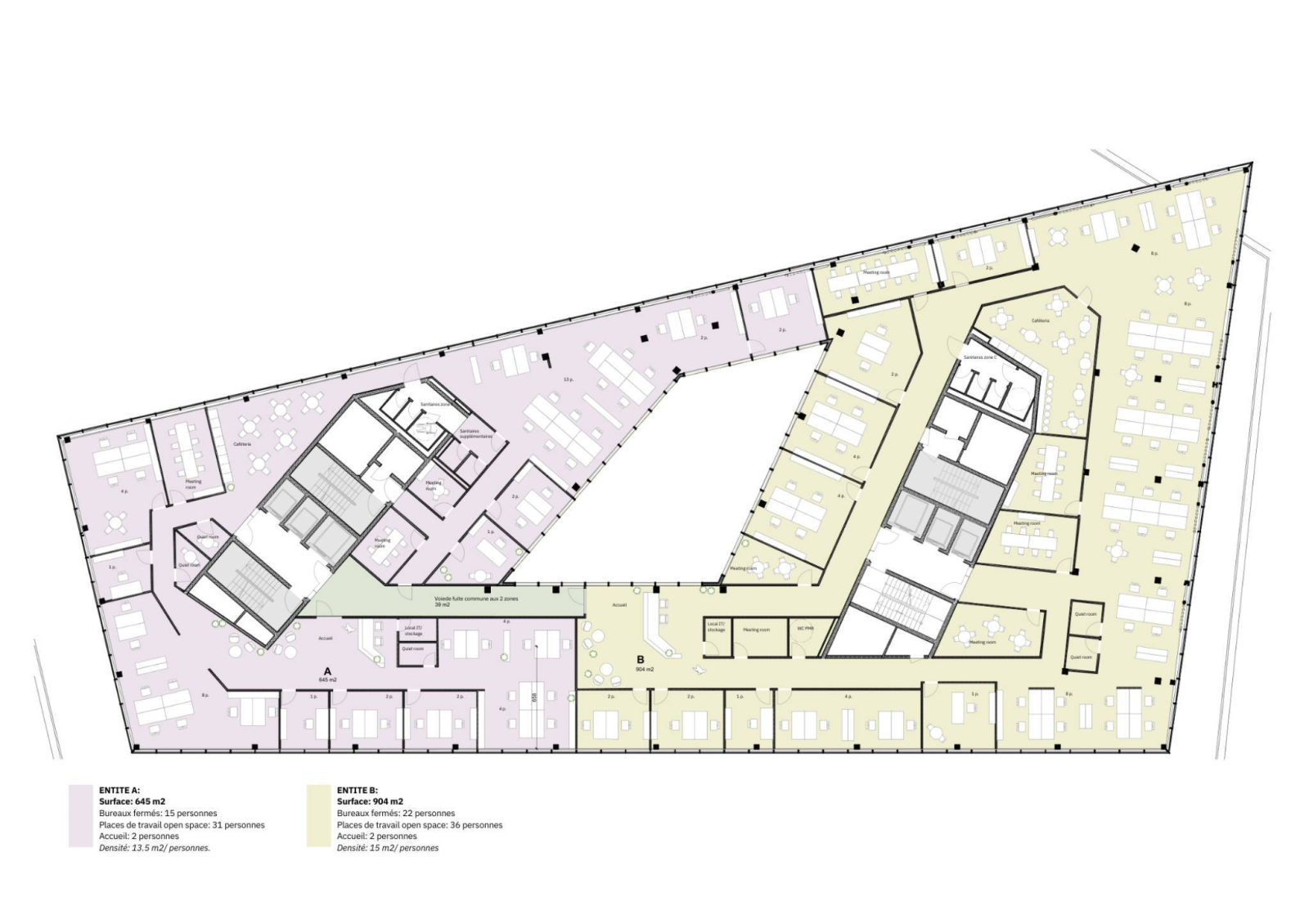
Nous proposons à la location une surface de bureaux d’environ 1’600 m², entièrement divisible, offrant une grande flexibilité d’implantation et des prestations de haut standing.
Surfaces disponibles :
- Surface A : 414 m²
- Surface B : 246 m²
- Surface C : 440 m²
- Surface D : 468 m²
Les surfaces peuvent être louées individuellement ou regroupées, selon les besoins de l’utilisateur.
Prestations :
- Surfaces livrées brutes, offrant une totale liberté d’aménagement
- Possibilité de livraison Plug & Play (clé en main) avec bureaux cloisonnés, salles de réunion et espaces collaboratifs
- Grandes surfaces vitrées garantissant une luminosité optimale
- Plateaux efficients, adaptés aux environnements open space
- Bâtiment de standing institutionnel, image et adresse valorisantes
- Quartier labelisé SNBS
- Nombreuses places de parking en sous-sol (public et privé)
Un environnement professionnel privilégié
- Quartier moderne, durable et parfaitement connecté
- Services, commerces et restauration à proximité immédiate
- Excellente accessibilité en transports publics et axes routiers
Nous proposons à la location une surface de bureaux d’environ 1’600 m², entièrement divisible, offrant une grande flexibilité d’implantation et des prestations de haut standing.
Surfaces disponibles :
- Surface A : 414 m²
- Surface B : 246 m²
- Surface C : 440 m²
- Surface D : 468 m²
Les surfaces peuvent être louées individuellement ou regroupées, selon les besoins de l’utilisateur.
Prestations :
- Surfaces livrées brutes, offrant une totale liberté d’aménagement
- Possibilité de livraison Plug & Play (clé en main) avec bureaux cloisonnés, salles de réunion et espaces collaboratifs
- Grandes surfaces vitrées garantissant une luminosité optimale
- Plateaux efficients, adaptés aux environnements open space
- Bâtiment de standing institutionnel, image et adresse valorisantes
- Quartier labelisé SNBS
- Nombreuses places de parking en sous-sol (public et privé)
Un environnement professionnel privilégié
- Quartier moderne, durable et parfaitement connecté
- Services, commerces et restauration à proximité immédiate
- Excellente accessibilité en transports publics et axes routiers
- Télécharger la brochure
- Sauvegarder
- Partager
Transaction
| Type | Bureau |
|---|---|
| Référence | L68478 |
| Charges | N.C |
| Disponibilité | À convenir |
Surfaces
| Surface habitable | 414 m² |
|---|
Bâtiment
| Nombre d'étages | 1 |
|---|---|
| Étage | 6 |
BARNES Commercial Realty SA
BARNES Commercial Realty SA




























