JARDIN EXOTIQUE - LOCAL TRANSFORMABLE EN APPARTEMENT - VILLA EDELWEISS
JARDIN EXOTIQUE - LOCAL TRANSFORMABLE EN APPARTEMENT - VILLA EDELWEISS
- 3Pièces
- 2Chambres
- 87m²Surface
IMMEUBLE BOURGOIS Local rare dans le quartier Jardin Exotique – Idéal pour bureau ou appartement 3 pièces
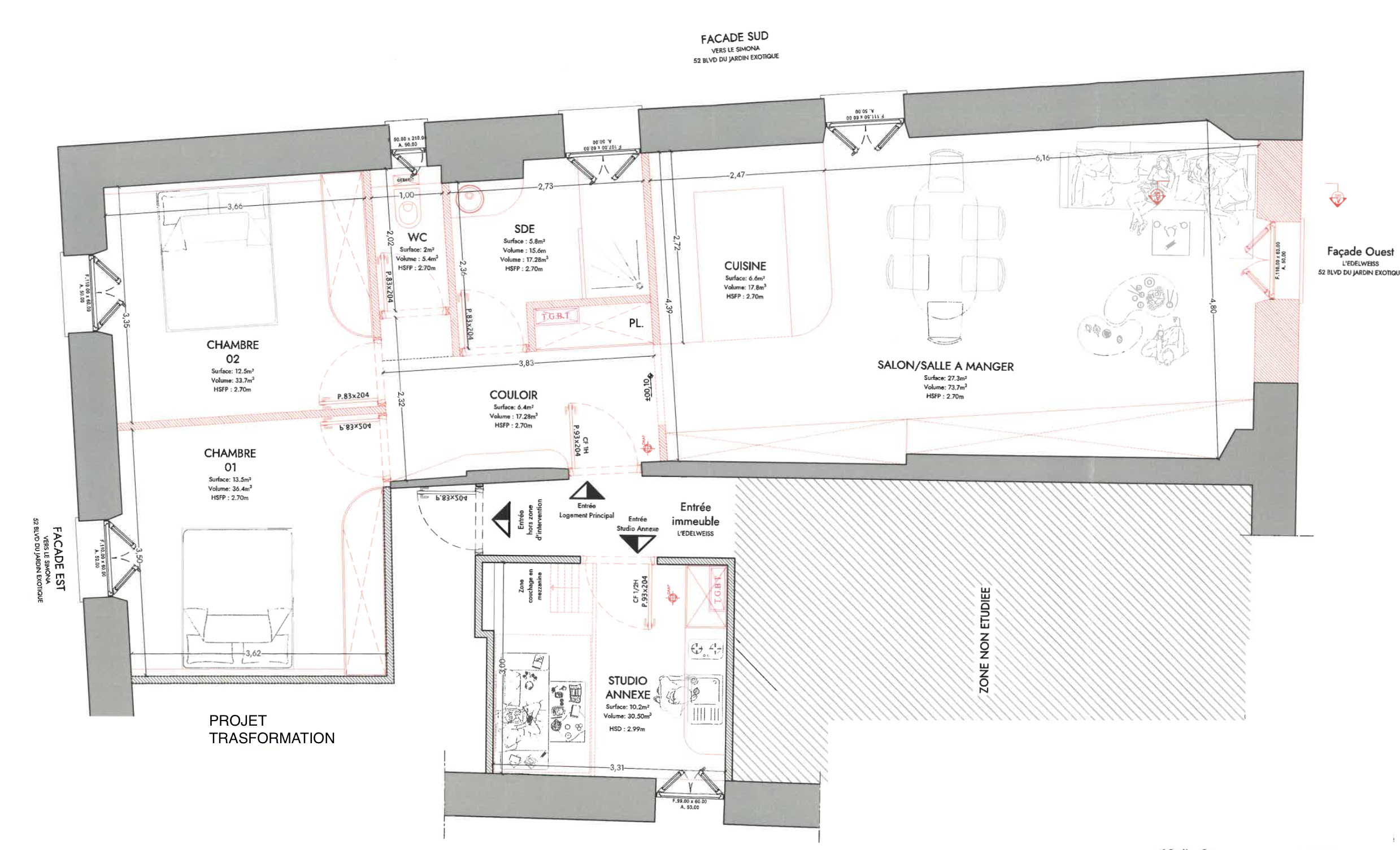
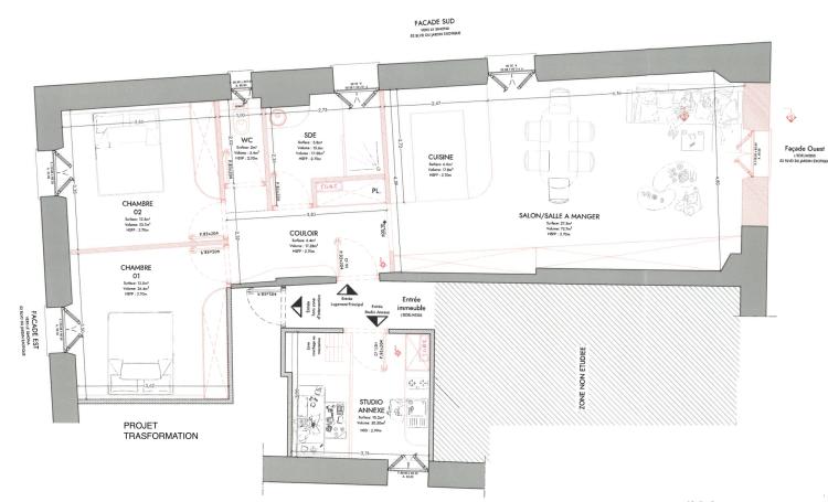
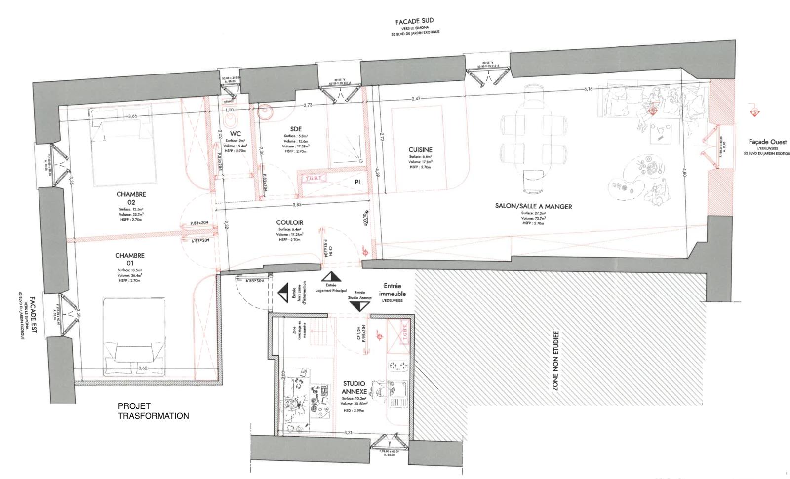
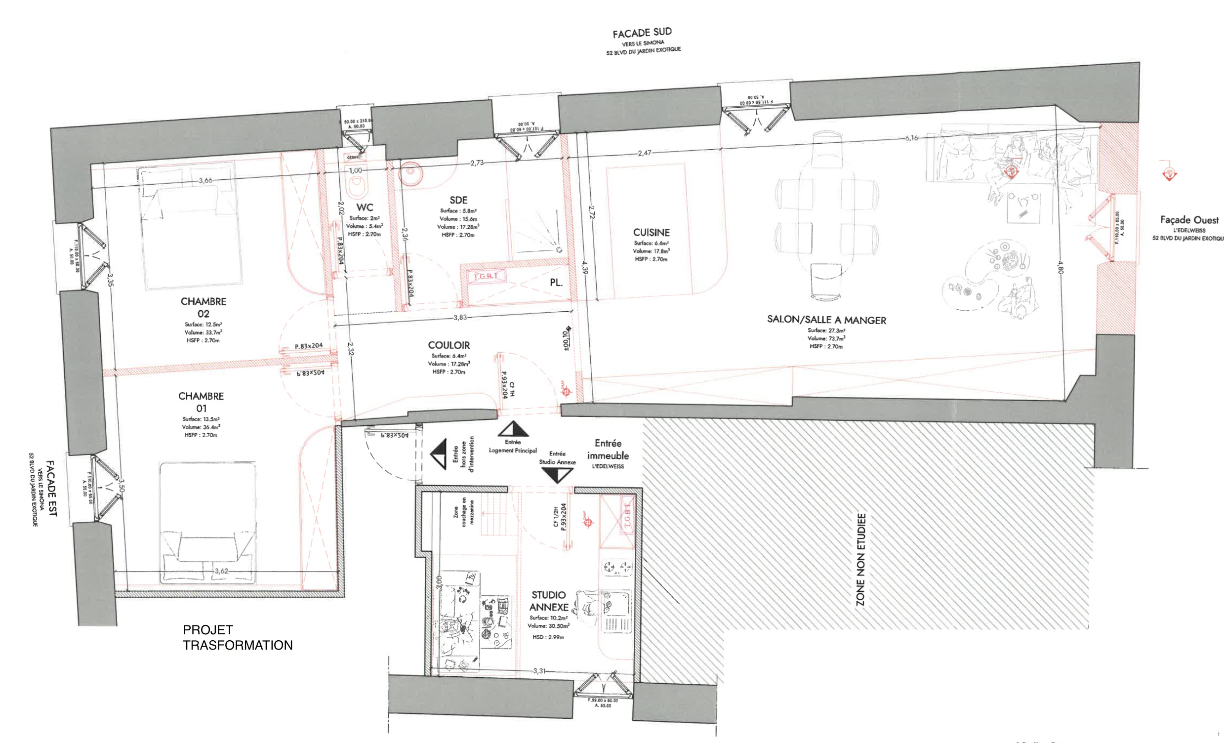
Local transformable en appartement 3 pièces
Situé dans le quartier prisé du Jardin Exotique, apprécié pour sa quiétude, ce bien bénéficie d’un environnement calme tout en restant proche des commodités et des accès vers Fontvieille et la Condamine.
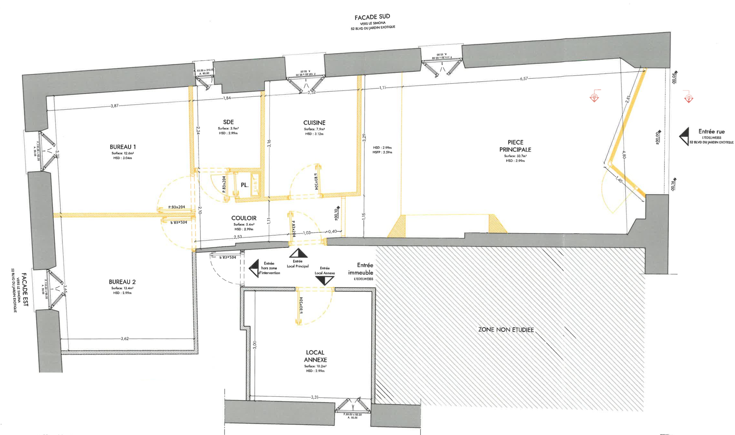
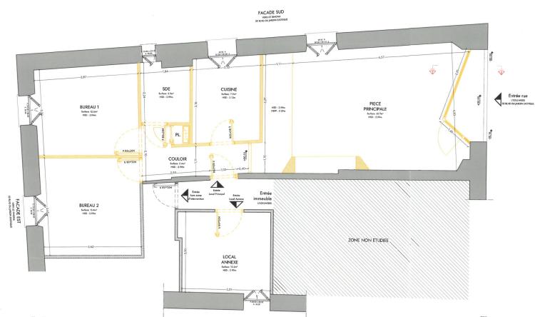
Actuellement à destination de local commercial, il est composé d’une double entrée, d’un espace ouvert, d’une cuisine séparée, d’une salle de bains et de deux chambres pouvant servir de bureaux. Une grande cave complète ce bien.
Idéal pour une société ou pour un appartement 3 pièces, le projet de transformation a déjà été validé par la DPUM et le permis de construire accordé. Un projet de façade résidentielle a également été réalisé et validé par l’urbanisme et le syndic de copropriété.
Ainsi, seuls les travaux de rénovation et d’aménagement seront à prévoir par l’acquéreur, offrant un beau potentiel pour créer un espace unique à votre image dans un secteur privilégié.
- Télécharger la brochure
- Sauvegarder
- Partager
Transaction
| Type | Appartement |
|---|---|
| Référence | PE_VILLA EDELWEISS |
| Disponibilité | À convenir |
Surfaces
| Pièces | 3 |
|---|---|
| Chambres | 2 |
| Salle de bain | 1 |
| Surface habitable | 87 m² |
| Nombre de caves | 1 |



















