Maison jumelle à Échichens – Un havre de paix aux portes de Morges
Maison jumelle à Échichens – Un havre de paix aux portes de Morges
CHF 2'290'000.-
Maison jumelle à Échichens – Un havre de paix aux portes de Morges
CHF 2'290'000.-
- 5Pièces
- 3Chambres
- 202m²Surface
- 519haSurface terrain
Réf. 79857
Maison jumelle à Échichens – Un havre de paix aux portes de Morges
Espaces intérieurs – Modernité et luminosité
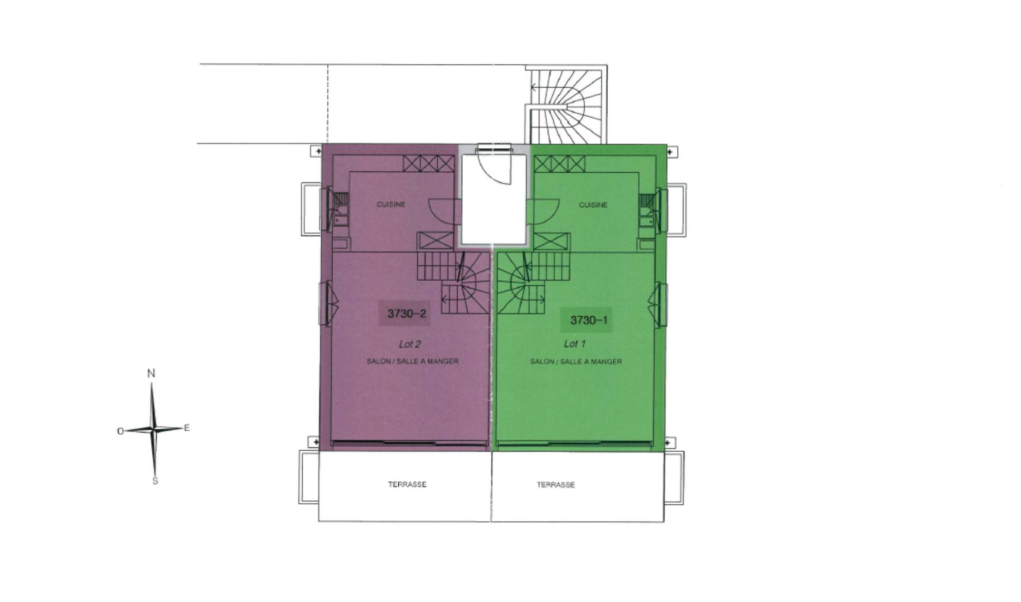
Rez-de-chaussée: l’espace de vie principal s’ouvre sur une pièce généreuse de 48 m², regroupant séjour, salle à manger et cuisine ouverte. De grandes ouvertures prolongent naturellement l’espace vers la terrasse et le jardin. L’installation d’une cheminée ou d’un poêle est possible pour créer une ambiance plus chaleureuse.
Étage: le premier niveau accueille une suite parentale avec salle de douche privative, ainsi que deux chambres de plus de 12 m², toutes deux orientées vers le lac et les Alpes. Une salle de bains complète cet étage dédié au repos et au confort familial.
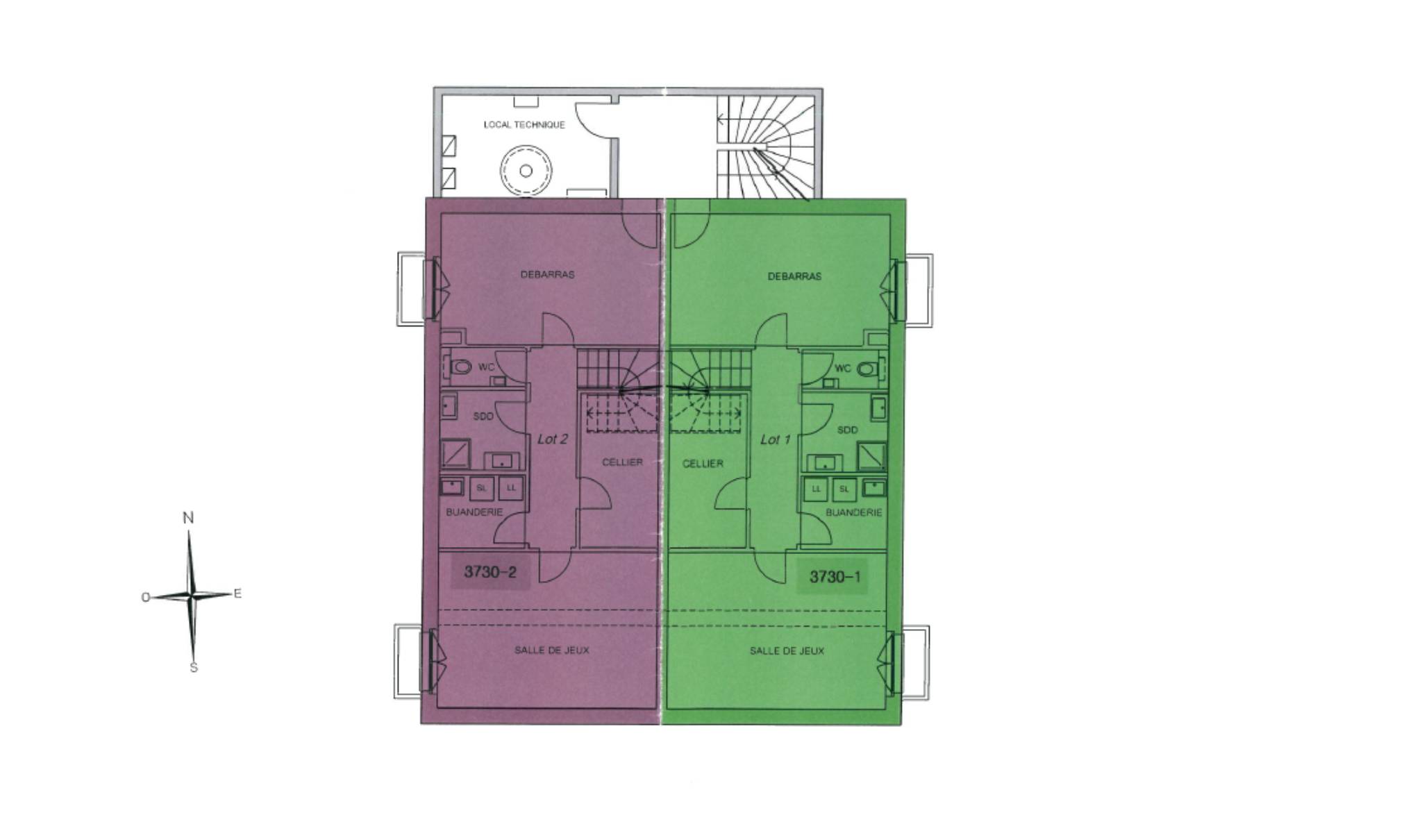
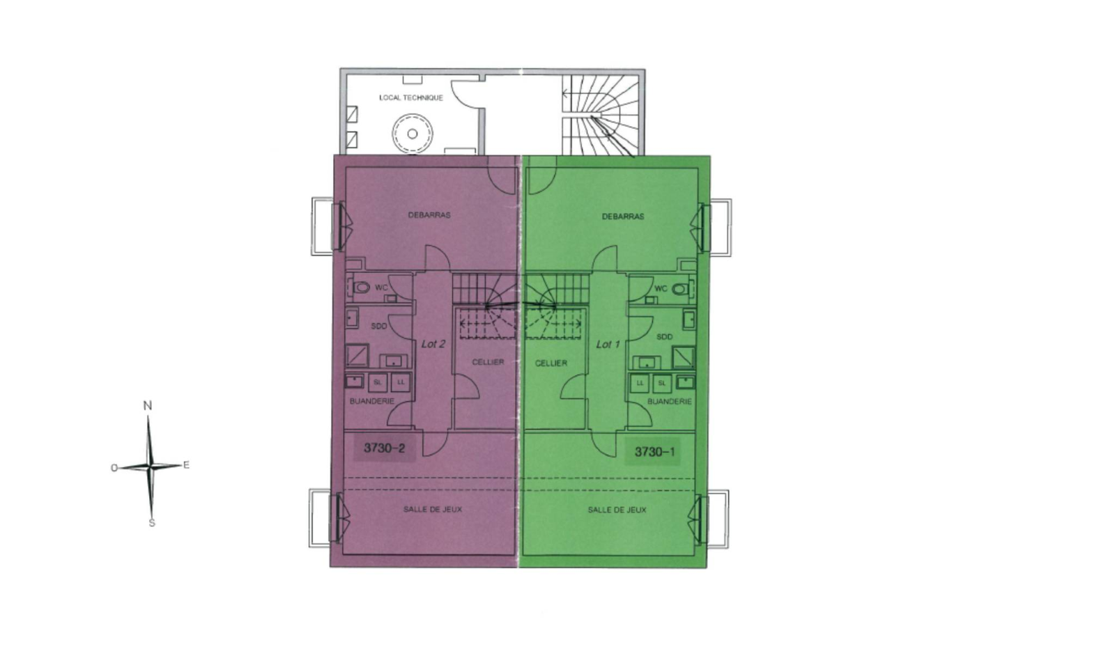
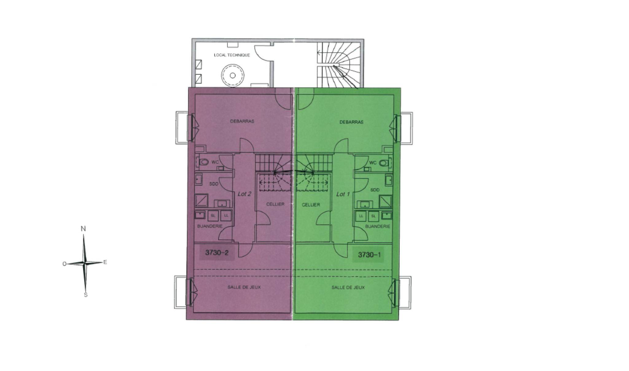
Sous-sol entièrement aménagé – 82 m²: entièrement chauffé il propose un disponible de 25 m² bénéficiant de lumière naturelle grâce à un saut de loup, ainsi qu’une pièce supplémentaire de 19 m². S’ajoutent une salle de douche, un WC séparé, une buanderie, un cellier et un local technique commun aux deux habitations.
Extérieurs – Un prolongement naturel de la maison
Le jardin, exposé Sud-Est, offre 325 m² d’espace verdoyant avec un accès privatif par portail. Une terrasse de 15 m² permet de profiter pleinement des beaux jours. Deux places de parc extérieures complètent l’ensemble.
Points clés de la propriété:
- Construction moderne certifiée Minergie-P, pour un confort optimal et une excellente performance énergétique.
- Panneaux photovoltaïques avec autoconsommation, réduisant les coûts d’exploitation.
- Pompe à chaleurs air/eau
- Sous-sol chauffé et entièrement aménagé, idéal pour un espace de loisirs, bureau ou chambres supplémentaires.
- Chambres avec vue sur le lac et/ou les Alpes.
- Accès rapide à l’autoroute, aux commerces et à la gare de Morges.
Cette maison jumelle allie efficacité énergétique, confort contemporain et cadre naturel agréable, tout en offrant une connexion directe aux principaux axes et commodités de la région.
Rez-de-chaussée: l’espace de vie principal s’ouvre sur une pièce généreuse de 48 m², regroupant séjour, salle à manger et cuisine ouverte. De grandes ouvertures prolongent naturellement l’espace vers la terrasse et le jardin. L’installation d’une cheminée ou d’un poêle est possible pour créer une ambiance plus chaleureuse.
Étage: le premier niveau accueille une suite parentale avec salle de douche privative, ainsi que deux chambres de plus de 12 m², toutes deux orientées vers le lac et les Alpes. Une salle de bains complète cet étage dédié au repos et au confort familial.
Sous-sol entièrement aménagé – 82 m²: entièrement chauffé il propose un disponible de 25 m² bénéficiant de lumière naturelle grâce à un saut de loup, ainsi qu’une pièce supplémentaire de 19 m². S’ajoutent une salle de douche, un WC séparé, une buanderie, un cellier et un local technique commun aux deux habitations.
Extérieurs – Un prolongement naturel de la maison
Le jardin, exposé Sud-Est, offre 325 m² d’espace verdoyant avec un accès privatif par portail. Une terrasse de 15 m² permet de profiter pleinement des beaux jours. Deux places de parc extérieures complètent l’ensemble.
Points clés de la propriété:
- Construction moderne certifiée Minergie-P, pour un confort optimal et une excellente performance énergétique.
- Panneaux photovoltaïques avec autoconsommation, réduisant les coûts d’exploitation.
- Pompe à chaleurs air/eau
- Sous-sol chauffé et entièrement aménagé, idéal pour un espace de loisirs, bureau ou chambres supplémentaires.
- Chambres avec vue sur le lac et/ou les Alpes.
- Accès rapide à l’autoroute, aux commerces et à la gare de Morges.
Cette maison jumelle allie efficacité énergétique, confort contemporain et cadre naturel agréable, tout en offrant une connexion directe aux principaux axes et commodités de la région.
Terrasse
- Télécharger la brochure
- Sauvegarder
- Partager
Transaction
| Type | Maison/Villa |
|---|---|
| Référence | 79857 |
| Disponibilité | À convenir |
Surfaces
| Pièces | 4.5 |
|---|---|
| Chambres | 3 |
| Salle de bain | 3 |
| Surface habitable | 121 m² |
| Surface du terrain | 519 m² |
Bâtiment
| Construction | 2025 |
|---|













































