Beausoleil - Standing résidence centre ville - Appartement 3 pièces
  • 3Pièces
  • 2Chambres
  • 59Surface
Réf. 86794827

Beausoleil - Standing résidence centre ville - Appartement 3 pièces

Au cœur de Beausoleil, surplombant la Principauté de Monaco, nouveau projet offrant des vues exceptionnelles sur la mer, tout en restant protégé des vis-à-vis.

Les lignes architecturales sont d’écriture contemporaine et de style épuré et dynamique, avec ses volumes rectilignes et ses lignes tendues.

Les façades possèdent de larges ouvertures, permettant une grande luminosité toute l’année. Les larges balcons filants et débords de toiture sont soulignés par des horizontalités et verticalités marquées, traitements de textures, de matériaux, claustra et voiles verticaux. Ceux-ci créent des cadrages de vues sur la Méditerranée et la principauté et de larges espace.

Les toitures et les jardins, soigneusement aménagés sur les différentes restanques, proposent des espaces naturels ensoleillés et paisibles. Un véritable cœur d’îlot verdoyant et rafraîchissant a été conçu, apportant confort et bien-être aux résidents.

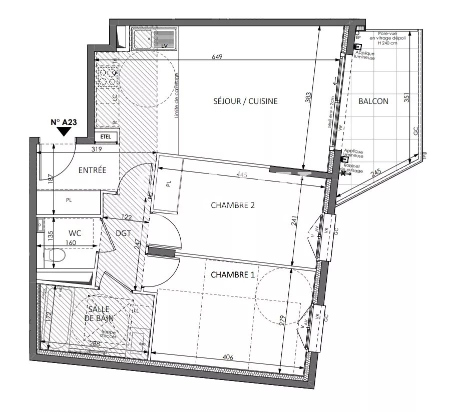
Cet appartement de 3 pièces se compose d'une entrée, un séjour avec cuisine ouverte, deux chambres, une salle d'eau, des toilettes pour les invités ainsi que d'une terrasse.

Livraison prévue 1èr trimestre 2028.
Terrasse
  • Télécharger la brochure
  • Sauvegarder
  • Partager

Transaction

TypeAppartement
Référence86794827
DisponibilitéÀ convenir

Surfaces

Pièces3
Chambres2
Salle de bain1
Surface habitable59 m²

Bâtiment

ExpositionSud
Nombre d'étages5
Étage2