Locaux en zone FTI d'env 720m2 à Plan-les-Ouates
Locaux en zone FTI d'env 720m2 à Plan-les-Ouates
Prix sur demande
Locaux en zone FTI d'env 720m2 à Plan-les-Ouates
Prix sur demande
- 720m²Surface
Réf. L50627
Locaux en zone FTI d'env 720m2 à Plan-les-Ouates
Ce complexe d’immeubles est situé dans la zone industrielle (FTI) de Plan-les-Ouates, à proximité des axes routiers, de la douane de Saint-Julien et de l’entrée de l’autoroute. Arrêts des lignes TPG: 22, 24 et D.
Plus de 40 entreprises sont implantées dans ce complexe. Ce site accueille également des chambres d’hôtes, 2 restaurants, une salle de sport et un service de conciergerie. Il dispose d’un cadre très agréable. Dans cette zone et à proximité du site on trouve des sociétés de renoms telles que : Clarins, Vacheron Constantin, Rolex….
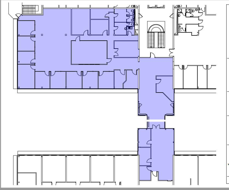
Les locaux de 720 m2 se trouvent au Bâtiment 12 au 2ème étage. Ils se composent d'un grand open spaces et plusieurs bureaux fermés, sanitaires et coin cuisine. Ils sont exploités pour une activité administrative. La société doit être éligible avec la zone FTI.
Les locaux disposent de systèmes de ventilation et d’extraction d’air, de climatisation ainsi que des raccordement électriques.
Une cage d’escalier centrale ainsi que 2 ascenseurs, un monte charge relient les niveaux. Possibilité de privatiser l’entrée du bâtiment pour installer un desk.
Places de parking disponibles, ratio 1 place / 40 m2
Adresse : chemin des Aulx, CH-1218 Plan-les-Ouates
Plus de 40 entreprises sont implantées dans ce complexe. Ce site accueille également des chambres d’hôtes, 2 restaurants, une salle de sport et un service de conciergerie. Il dispose d’un cadre très agréable. Dans cette zone et à proximité du site on trouve des sociétés de renoms telles que : Clarins, Vacheron Constantin, Rolex….
Les locaux de 720 m2 se trouvent au Bâtiment 12 au 2ème étage. Ils se composent d'un grand open spaces et plusieurs bureaux fermés, sanitaires et coin cuisine. Ils sont exploités pour une activité administrative. La société doit être éligible avec la zone FTI.
Les locaux disposent de systèmes de ventilation et d’extraction d’air, de climatisation ainsi que des raccordement électriques.
Une cage d’escalier centrale ainsi que 2 ascenseurs, un monte charge relient les niveaux. Possibilité de privatiser l’entrée du bâtiment pour installer un desk.
Places de parking disponibles, ratio 1 place / 40 m2
Adresse : chemin des Aulx, CH-1218 Plan-les-Ouates
- Télécharger la brochure
- Sauvegarder
- Partager
Transaction
| Type | Atelier |
|---|---|
| Référence | L50627 |
| Disponibilité | De suite |
Surfaces
| Surface habitable | 720 m² |
|---|
Bâtiment
| Nombre d'étages | 1 |
|---|---|
| Étage | 2 |






















