Atelier lumineux de 365 m² à Meyrin
CHF 6'200.-
- 365m²Surface
Réf. L66424
Atelier lumineux de 365 m² à Meyrin
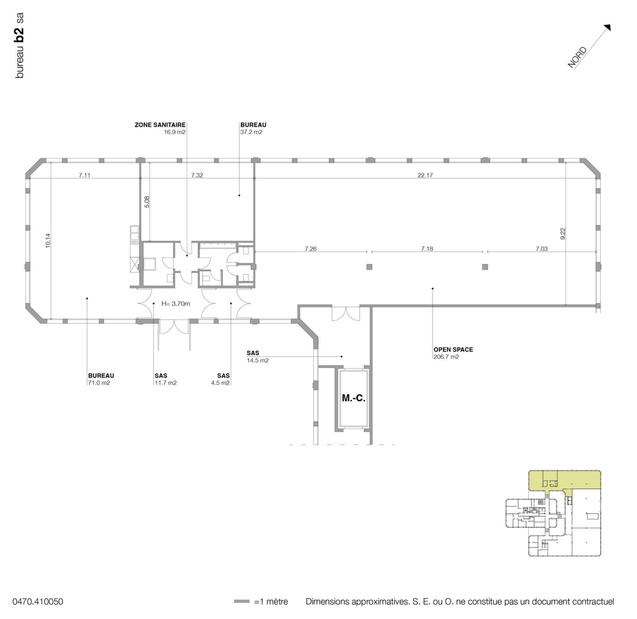
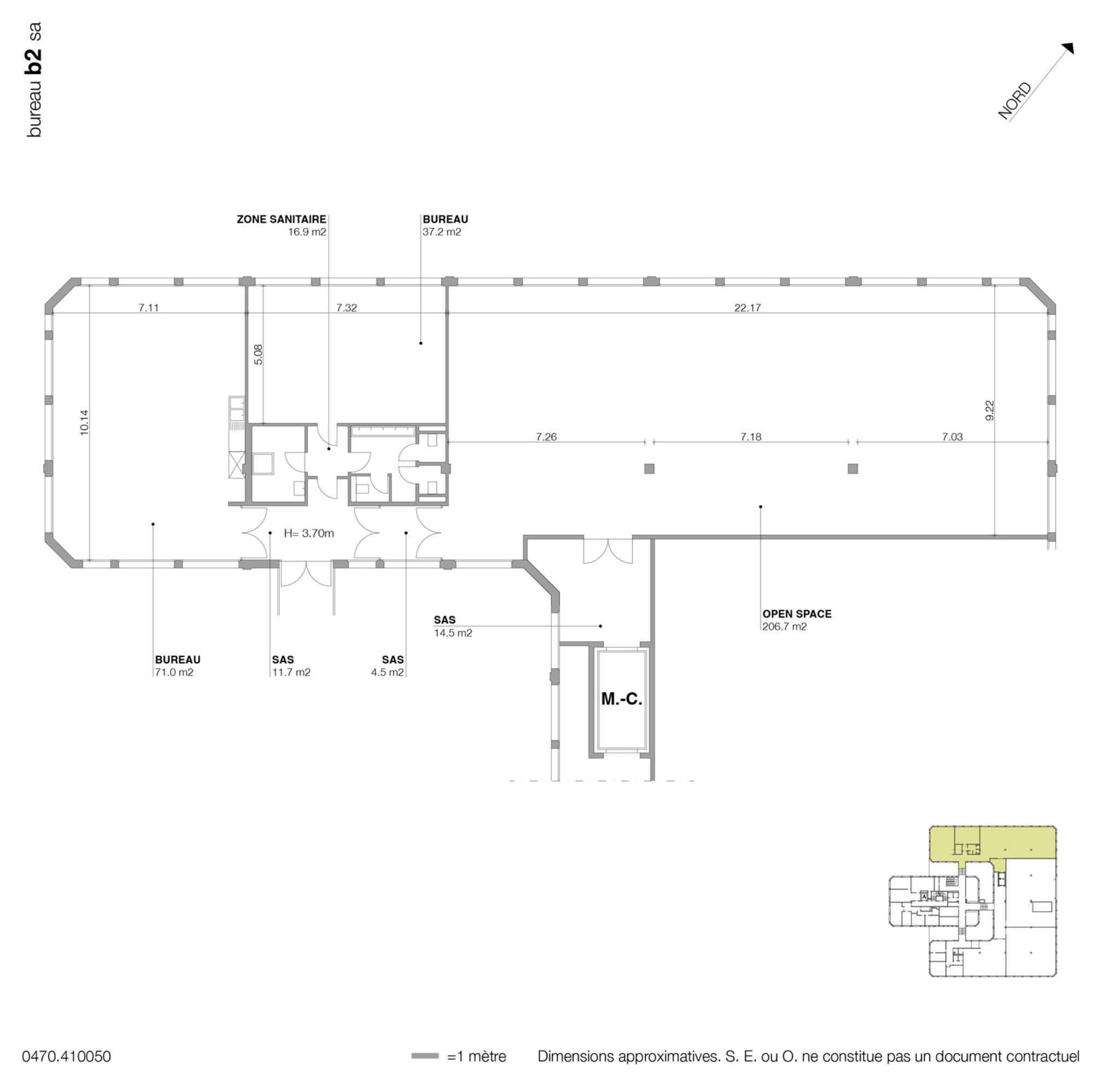
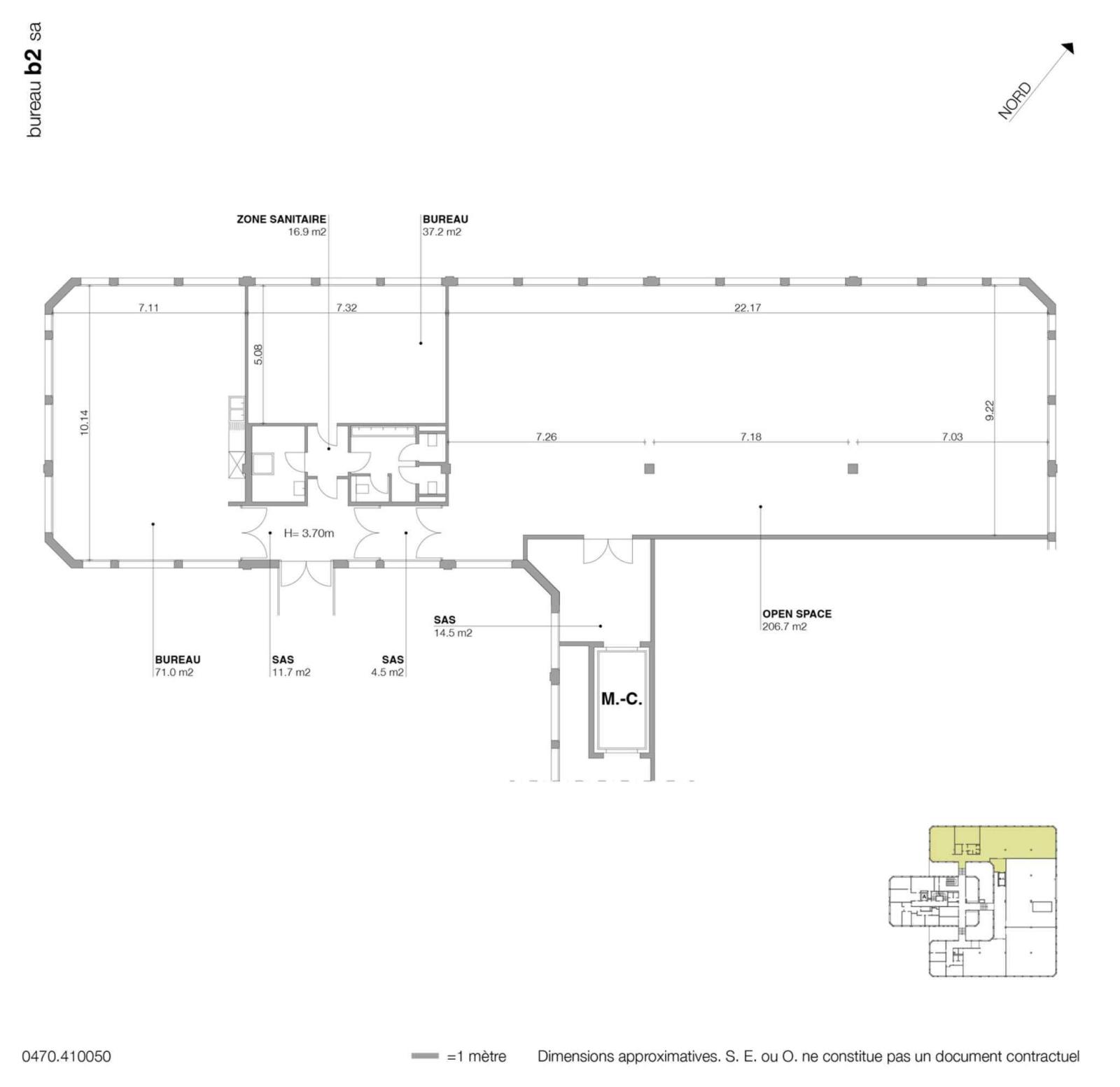
Situé idéalement au Chemin du Grand-Puits 40 à Meyrin, cet atelier spacieux de 365 m² bénéficie d'une belle luminosité naturelle, grâce à de larges ouvertures. Positionné au premier étage d'un bâtiment fonctionnel, il offre un accès direct et pratique via un monte-charge, facilitant ainsi la logistique et la manutention.
La surface, actuellement en cours de rafraîchissement, sera livrée prête à accueillir diverses activités professionnelles ou artisanales. L'espace est doté d'aménagements pratiques comprenant des sanitaires, une douche ainsi qu'une cafétéria, offrant ainsi un environnement de travail confortable et convivial.
Points forts :
- Surface généreuse de 365 m²
- Accès direct via monte-charge
- Très lumineux grâce aux grandes fenêtres
- Sanitaires, douche et cafétéria sur place
- Travaux de rafraîchissement en cours
Cet atelier polyvalent est idéal pour des entreprises cherchant un emplacement stratégique proche des principaux axes routiers et des commodités de Meyrin.
N'attendez plus, contactez-nous pour organiser une visite et projetez votre activité dans ce lieu inspirant !
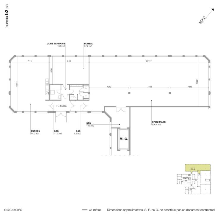
La surface, actuellement en cours de rafraîchissement, sera livrée prête à accueillir diverses activités professionnelles ou artisanales. L'espace est doté d'aménagements pratiques comprenant des sanitaires, une douche ainsi qu'une cafétéria, offrant ainsi un environnement de travail confortable et convivial.
Points forts :
- Surface généreuse de 365 m²
- Accès direct via monte-charge
- Très lumineux grâce aux grandes fenêtres
- Sanitaires, douche et cafétéria sur place
- Travaux de rafraîchissement en cours
Cet atelier polyvalent est idéal pour des entreprises cherchant un emplacement stratégique proche des principaux axes routiers et des commodités de Meyrin.
N'attendez plus, contactez-nous pour organiser une visite et projetez votre activité dans ce lieu inspirant !
- Télécharger la brochure
- Sauvegarder
- Partager
Transaction
| Type | Atelier |
|---|---|
| Référence | L66424 |
| Charges | N.C |
| Disponibilité | À convenir |
Surfaces
| Surface habitable | 365 m² |
|---|
Bâtiment
| Nombre d'étages | 1 |
|---|---|
| Étage | 1 |
BARNES Commercial Realty SA
BARNES Commercial Realty SA


























