Bureaux 280m2 proche HUG
CHF 9'100.-
- 280m²Surface
Réf. L68604
Bureaux 280m2 proche HUG
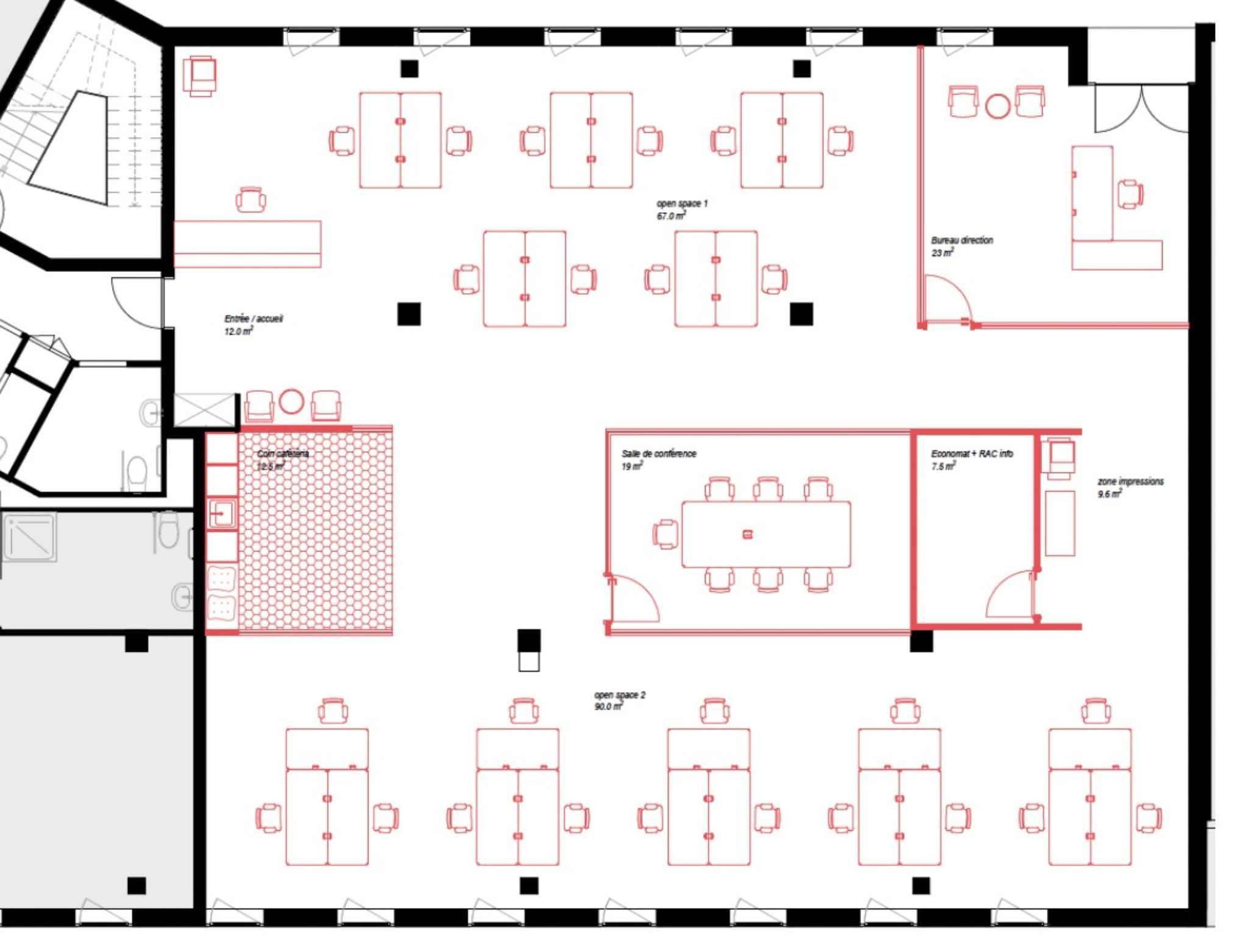
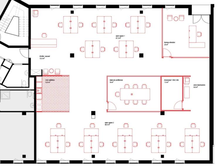
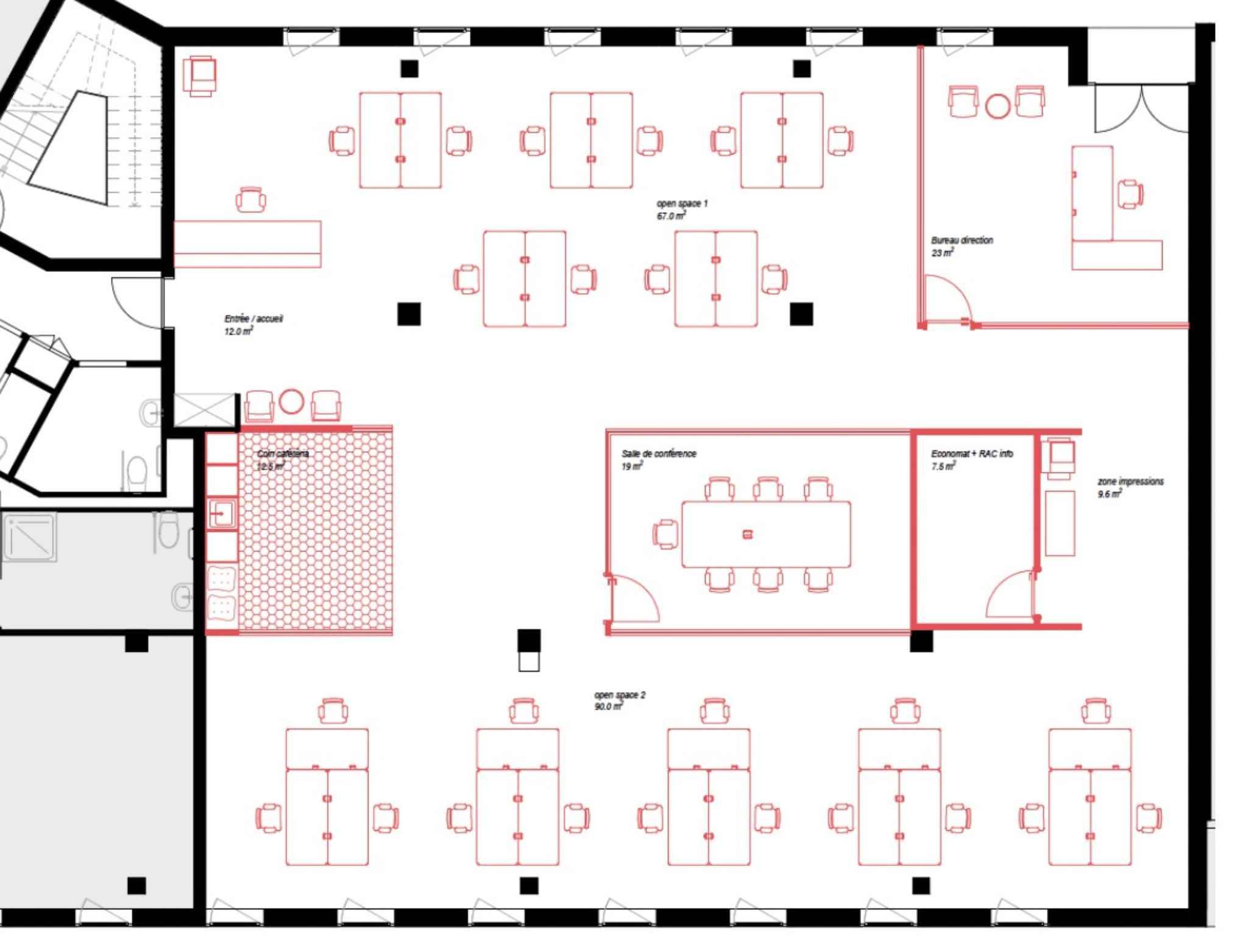
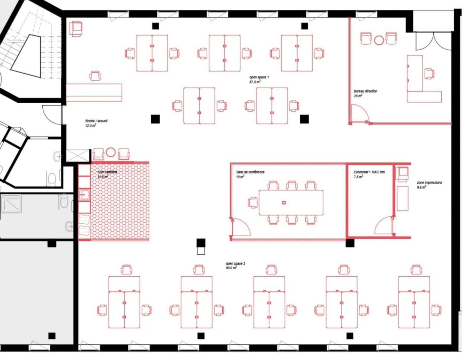
Idéalement situés à la Rue des Battoirs 7 à Genève, ces bureaux d’une surface d’environ 280 m² offrent un environnement de travail agréable et fonctionnel, à proximité immédiate des commodités et des transports publics.
Les locaux seront aménagés conformément au projet présenté en photo de l’annonce.
Il s’agit ainsi d’une opportunité idéale pour une entreprise souhaitant personnaliser ses espaces de travail dans un immeuble bien situé au cœur de Genève.
Nous nous tenons à disposition pour tout complément d’information ou pour organiser une visite.
Les photos de l'annonce ne sont pas contractuelles
Les locaux seront aménagés conformément au projet présenté en photo de l’annonce.
Il s’agit ainsi d’une opportunité idéale pour une entreprise souhaitant personnaliser ses espaces de travail dans un immeuble bien situé au cœur de Genève.
Nous nous tenons à disposition pour tout complément d’information ou pour organiser une visite.
Les photos de l'annonce ne sont pas contractuelles
- Télécharger la brochure
- Sauvegarder
- Partager
Transaction
| Type | Bureau |
|---|---|
| Référence | L68604 |
| Charges | CHF 817.- |
| Disponibilité | À convenir |
Surfaces
| Surface habitable | 280 m² |
|---|
Bâtiment
| Nombre d'étages | 1 |
|---|---|
| Étage | 7 |
BARNES Commercial Realty SA
BARNES Commercial Realty SA














