VILLA 4 PIÈCES de 146 m² PLASCASSIER
EUR (€) 695'000
- 4Pièces
- 3Chambres
- 146m²Surface
- 1803haSurface terrain
Réf. 86196119
VILLA 4 PIÈCES de 146 m² PLASCASSIER
PLASCASSIER – 4 lots disponible entre 146m² et 179m².
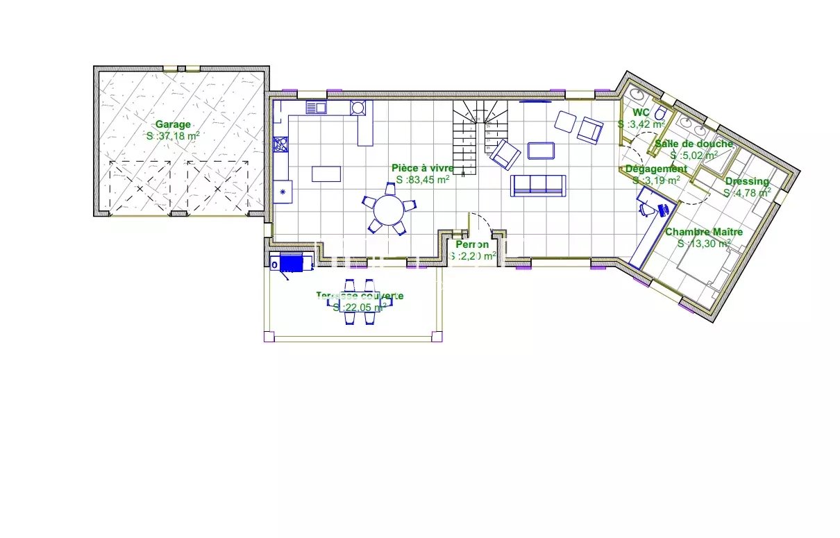
Dans un domaine résidentiel sécurisé, découvrez cette villa contemporaine 4 pièces de 146 m² habitables sur un terrain de 1803m² avec double garage.
Idéalement située, à proximité immédiate des commodités.
De belles prestations prévus (pompe à chaleur, menuiseries aluminium).
Agencement :
? Rez-de-jardin : elle se compose d’un séjour/cuisine de plus de 83 m², ouvrant sur une terrasse couverte et d’une suite parentale d’environ 30 m² comprenant chambre, salle d’eau, dressing et WC.
? À l’étage : elle se compose de 2 chambres, d’une salle de bains et d’un toilette indépendant.
Extérieurs & Prestations :
• Terrain privatif de 1803m²
• Double garage de 37 m² + stationnements privatifs
• Terrasse couverte de 22 m²
• Exposition plein sud
• À pied des commodités
En option : peinture
Disponible pour fin 2026
Frais de notaire réduits.
Dans un domaine résidentiel sécurisé, découvrez cette villa contemporaine 4 pièces de 146 m² habitables sur un terrain de 1803m² avec double garage.
Idéalement située, à proximité immédiate des commodités.
De belles prestations prévus (pompe à chaleur, menuiseries aluminium).
Agencement :
? Rez-de-jardin : elle se compose d’un séjour/cuisine de plus de 83 m², ouvrant sur une terrasse couverte et d’une suite parentale d’environ 30 m² comprenant chambre, salle d’eau, dressing et WC.
? À l’étage : elle se compose de 2 chambres, d’une salle de bains et d’un toilette indépendant.
Extérieurs & Prestations :
• Terrain privatif de 1803m²
• Double garage de 37 m² + stationnements privatifs
• Terrasse couverte de 22 m²
• Exposition plein sud
• À pied des commodités
En option : peinture
Disponible pour fin 2026
Frais de notaire réduits.
TerrasseParking
- Télécharger la brochure
- Sauvegarder
- Partager
Transaction
| Type | Maison/Villa |
|---|---|
| Référence | 86196119 |
| Disponibilité | À convenir |
Surfaces
| Pièces | 4 |
|---|---|
| Chambres | 3 |
| Salle de bain | 2 |
| Surface habitable | 146 m² |
| Surface du terrain | 1803 m² |
Bâtiment
| Exposition | Sud |
|---|---|
| Nombre d'étages | 2 |


















